Amiens, Sainte Anne : Immeuble 75m2 de 3 studios en colocati
Amiens 80090
0
Amiens - Sainte Anne :
En exclusivité au Cabinet Immobilier Amiénois !
Idéal AirBnB ou investisseurs !
Un Immeuble de rapport d'environ 75m2 comprenant 3 studios en colocation !
Location possible entre 450 EUR et 500 EUR tout inclus par chambre !
- La colocation propose un espace de vie de 16m2 en commun avec une cuisine / séjour et wc !
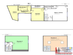
Puis, au rez de chaussée :
- 1er espace privé de 23m2 de la colocation : coin chambre, couloir, salle d'eau et wc séparé, espace cuisine / séjour
Au 1er étage :
- 2ème espace privé de 15m2 de la colocation : espace de vie avec kitchenette, salle d'eau avec wc privée
Au 2nd étage :
- 3ème espace privé de 17m2 de la colocation : espace de vie avec kitchenette, salle d'eau avec wc privée
Chauffage collectif au Gaz ! Façade sablée !
Rénover récemment en partie ( le 1er espace privé en rez de chaussée est en retravailler ! )
Idéalement situé ! A proximité immédiate de la gare, du Centre-Ville et des trasport en commun !
75 m²
2 399 €
Consommations énergétiques
Logement économe
190
Logement énergivore (kWhEP/m2/an)
Émissions de gaz à effet de serre
Faible émission de GES
38
Forte émission de GES(kgeqCO2/m2/an)
Contact Romain HECQUET
Contacter gratuitement à l'aide du formulaire ci-dessous.