A la sortie de Pontivy, à deux pas du lycée, au pied du canal de Nantes à Brest, se trouvent un ancien moulin et ses maisons attenantes représentant une surface totale de 1 000 m² situés sur un terrain de 2951 m².
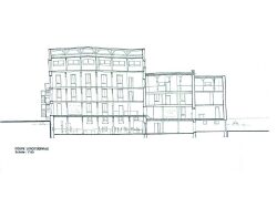
Cette bâtisse est composée d'un sous-sol avec fenêtre, d'un rez-de-chaussée, de deux étages supplémentaires et d'un 3ème étage sous-comble aménageable. Elle dispose également de deux maisons attenantes à restaurer. Un projet de logements étudiants a été imaginé en 3 dimensions pour cette superbe demeure à rénover.
Que votre projet soit professionnel ou personnel, cette bâtisse qui bénéficie de volumes exceptionnels sera un investissement patrimonial à fort potentiel compte-tenu de son emplacement.
Morgan ROUSSEAU conseiller immobilier sur GUERLEDAN et Alentours.
Honoraires à la charge du vendeur. Non soumis au DPE. Les informations sur les risques auxquels ce bien est exposé sont disponibles sur le site Géorisques : georisques.gouv.fr.