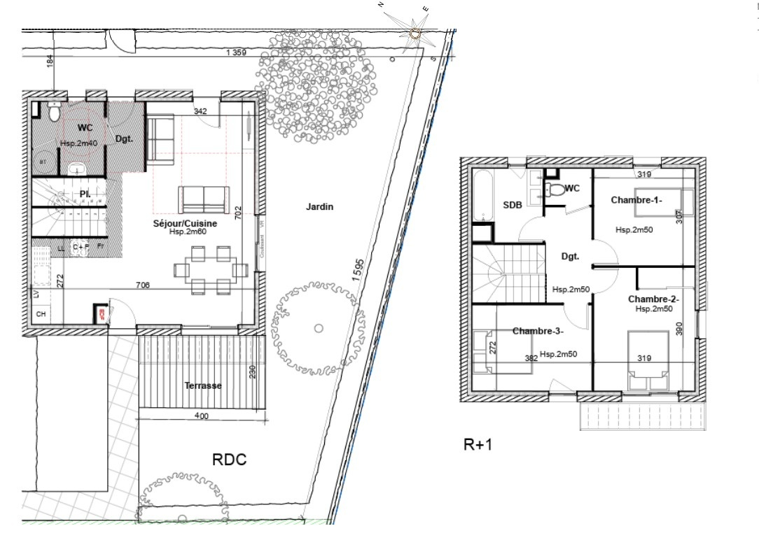
EXCLUSIVITE - CHESSY - Située dans un environnement boisé, ancien relais de poste en pierres d'environ 130 m2 habitables. Il comprend au rez-de-chaussée : entrée avec rangement, potentiellement un appartement indépendant avec pièce à vivre, une chambre/bureau et salle d'eau avec wc. Plus une pièce/buanderie et chaufferie. Au 1er étage, séjour avec cheminée et cuisine ouvrants sur terrasse et jardin, 1 chambre avec rangements et salle de bains avec wc. 75 m2 de combles et une cave viennent compléter ce bien. Le tout sur un terrain en partie boisé d'environ 7 125 m2 agrémenté d'un puits. Plus de photos, Vidéo et renseignements sur ce bien ou sur la commune de Chessy (transports, écoles, commerces..) sur Cabinet Buisantin ou contacter Jean-Christophe LATUILIERE au 06.20.08.29.25
130 m²
2 838 €
7125 m²
5
3
1
1
2
1900
Sud
Ouest
1
Oui
Consommations énergétiques
Logement économe
210
Logement énergivore (kWhEP/m2/an)
Émissions de gaz à effet de serre
Faible émission de GES
50
Forte émission de GES(kgeqCO2/m2/an)
Contact LATUILIERE
Contacter gratuitement à l'aide du formulaire ci-dessous.