Angers ? Ney Saint-Serge ? Appartement T6 de 132 m² avec terrasse, balcon, 2 parkings et cave
Angers 49100
0
Angers ? Ney Saint-Serge ? Appartement T6 de 132 m² avec terrasse, balcon, 2 parkings et cave
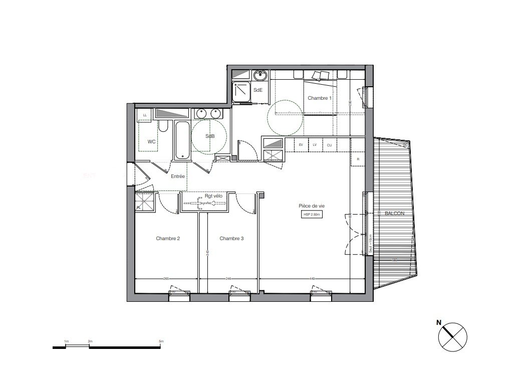
A deux pas de l'hyper-centre d'Angers, quartier vivant de Ney Saint-Serge, découvrez ce vaste appartement de 132 m², au sein d'une petite copropriété avec ascenseur. Son agencement et ses volumes généreux en font un bien rare sur le marché, parfait pour accueillir une famille ou pour un projet d'investissement locatif.
Dès l'entrée, vous serez séduits par un séjour traversant de 35 m², lumineux et ouvert sur un balcon filant. La cuisine indépendante, entièrement équipée, bénéficie d'un accès direct à une agréable terrasse de près de 20 m², idéale pour les repas en extérieur et les moments de détente.
L'espace nuit propose quatre chambres spacieuses, une salle d'eau, deux WC indépendants ainsi qu'un grand dégagement offrant confort et fonctionnalité. L'appartement, entretenu avec soin, combine modernité et praticité.
Deux places de stationnement privatives et une cave complètent ce bien.
Ses atouts : ascenseur, double exposition, luminosité, volumes généreux, calme, et une localisation stratégique proche des commerces, transports, établissements scolaires et accès rapides à la rocade.
Enfin, ce bien bénéficie d'un avantage rare : deux accès indépendants, permettant d'imaginer une division, une colocation ou encore une sous-location partielle.
Les informations sur les risques auxquels ce bien est exposé sont disponibles sur le site Géorisques : www.georisques.gouv.fr (7.00 % honoraires TTC à la charge de l'acquéreur.)
Copropriété de 13 lots - dont 5 lots habitation. (Pas de procédure en cours).
Charges annuelles : 3487 euros.
Bien présenté par Agences de France par délégation.
Agences de France ? SIREN : 899413603 ? Titulaire de la carte T : 29012021000000009 non habilité à percevoir des fonds
132 m²
2 270 €
6
4
1
2 sur 3
1975
Aménagée
Oui
Oui
Consommations énergétiques
Logement économe
221
Logement énergivore (kWhEP/m2/an)
Émissions de gaz à effet de serre
Faible émission de GES
38
Forte émission de GES(kgeqCO2/m2/an)
Contact PINEAU IMMOBILIER
Contacter gratuitement à l'aide du formulaire ci-dessous.