Honoraires à la charge de l'acquéreur (Prix hors honoraires : 0 euros).
Les charges de location sont prévisionnelles mensuelles avec régularisation annuelle.
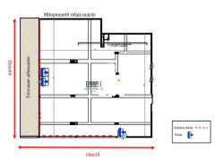
A LOUER LOCAL COMMERCIAL ANGERS NORD Quartier LES HAUTS SAINTS AUBIN, Pour une activité de restauration avec extraction Surface 267 m² environ en angle avec deux façades de 16 mètres Terrasse sur espace piéton possible Brut de béton réseaux et fluide en attente, huisseries posées Transports (tramway et bus) parkings à 2 min à pieds Environnement HABITATIONS, COMMERCES ET SERVICES, CHU, PARC TERRA BOTANICA, PARC AQUATIQUE AQUA VITA... Bail commercial 3/6/9 Loyer annuel HT/HC 37 380 DPG 3 mois de loyer Honoraires de commercialisation 25 % HT du loyer annuel HT/HC à la charge du preneur Rédaction du bail et état des lieux en sus des honoraires à la charge du preneur. Pour plus d'informations contactez-nous au 02 55 07 86 35
Honoraires de 9 345 HT à la charge du locataire. Dépôt de garantie 9 345 . Non soumis au DPE. Les informations sur les risques auxquels ce bien est exposé sont disponibles sur le site Géorisques : georisques.gouv.fr. . LOCAUX-BUREAUX-COMMERCES 02 55 07 86 35
267 m²
9345 %
Contact Sonia BERNOVILLE
Contacter gratuitement à l'aide du formulaire ci-dessous.