Honoraires à la charge de l'acquéreur (Prix hors honoraires : 0 euros).
Les charges de location sont prévisionnelles mensuelles avec régularisation annuelle.
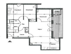
ANNECY CENTRE spacieux F4 meublé de 79 m², situé au 2ème étage. Dans une copropriété des années 2010. Il se compose de : un grand séjour avec cuisine ouverte; donnant accès à un balcon de 10m²; trois chambres ; une loggia ; SDB (douche) ; WC séparés ; un garage de 20m². Chauffage collectif/gaz. DPE : C ; Loyer mensuel 1826 + 164 de charges (révision annuelle) ; Caution : 3652 ; Frais d'agence : 1023 (EDL inclus) - Disponible au 01/12/2025 ACCORT IMMOBILIER : 04.50.46.48.79
Honoraires de 1 023 TTC à la charge du locataire. Loyer de base 1826 /mois. Provision sur charges 164 /mois, régularisation annuelle. Dépôt de garantie 3 642 . Classe énergie C, Classe climat C Montant moyen estimé des dépenses annuelles d'énergie pour un usage standard, établi à partir des prix de l'énergie de l'année 2023 : entre 400.00 et 0 . Les informations sur les risques auxquels ce bien est exposé sont disponibles sur le site Géorisques : georisques.gouv.fr.