ANNEMASSE - Appartement T3 de 87,17 m² avec cave et garage
Annemasse 74100
0
Honoraires à la charge du vendeur.
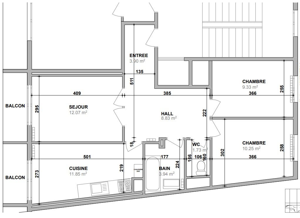
EXCLUSIVITÉ ! ANNEMASSE - Au coeur du centre ville secteur MJC, venez découvrir cet appartement aux volumes généreux (87m²). Idéalement situé, il vous permet un accès direct au TRAM (Parc Montessuit) ainsi qu'à toutes les commodités et écoles. Au troisième étage sur 5, il dispose d'une magnifique vue sans vis-à-vis sur le Salève. Anciennement aménagé en local professionnel, une rénovation en fera un nid douillet où il fait bon vivre. Il se compose d'un salon séjour double, d'une pièce qui accueille la cuisine, deux grandes chambres, une salle de bains, une salle de douche et WC séparés. Le double vitrage est en cours de changement pour une optimisation énergétique.
Une cave en sous-sol ainsi qu'un garage accompagnent ce bien.
DPE : D Nombre de lots de copropriété : 136 dont 51 lots principaux Charges annuelles : 4.253,92 (charges générales, eau chaude, chauffage) Taxe foncière : 1993 Informations Risque et Pollution : www.georisques.gouv.fr Honoraires charge vendeur Consultez nos tarifs sur www.bouvet-cartier.com/honoraires Pour plus de renseignements sur cette annonce, contactez-nous au 04 50 74 54 54 ou par mail agence.annemasse@bouvet-cartier.immo.
Honoraires à la charge du vendeur. Dans une copropriété de 136 lots. Quote-part moyenne du budget prévisionnel 4 254 /an. Procédure en cours : neant. Classe énergie D, Classe climat D Montant estimé des dépenses annuelles d'énergie pour un usage standard : entre 1420.00 et 1960.00 sur les années 2021, 2022 et 2023 (abonnements compris). Les informations sur les risques auxquels ce bien est exposé sont disponibles sur le site Géorisques : georisques.gouv.fr.