ANNEMASSE - Spécial investissement locatif par bail commercial - Studio avec une place de parking en sous-sol dans une résidence étudiante en centre-ville - Vous pourrez opter pour le statut fiscal LMNP donnant droit à une exonération d'impôt sur les revenus locatifs - Ce Studio est meublé, d'une surface d'environ 18 m2 et bénéficiant d'un emplacement privilégié proche du tram - Percevez 5 658 Euros / an de loyer garanti - Réalisez un investissement locatif sans soucis de gestion, le produit idéal pour préparer son avenir et se constituer un patrimoine immobilier avec une rentabilité sécurisée.
Bien présenté par Agences de France par délégation.
Agences de France ? SIREN : 899413603 ? Titulaire de la carte T : 29012021000000009 non habilité à percevoir des fonds
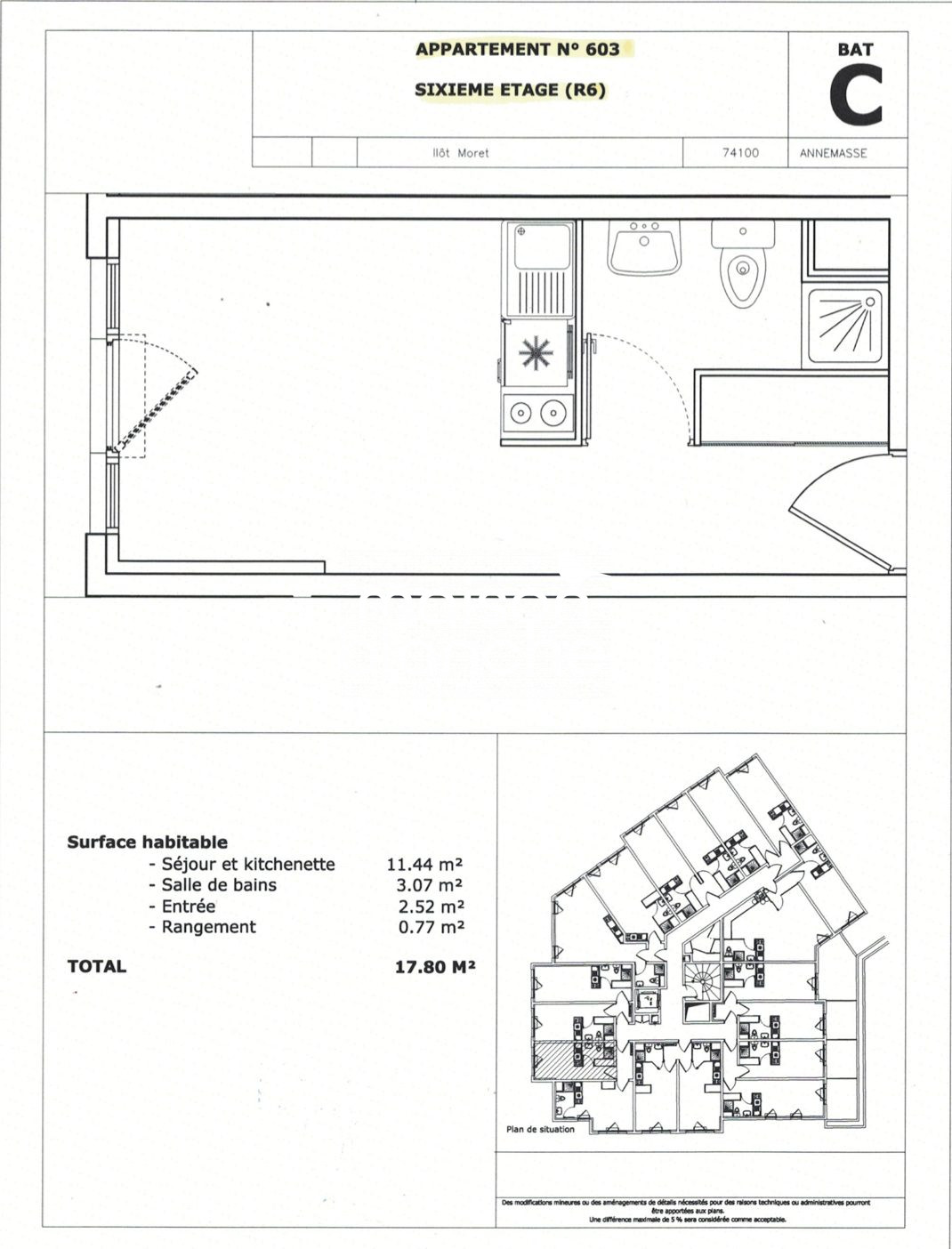
18 m²
5 278 €
1
1
1
3 sur 7
2006
Coin cuisine
Oui
Consommations énergétiques
Logement économe
193
Logement énergivore (kWhEP/m2/an)
Émissions de gaz à effet de serre
Faible émission de GES
5
Forte émission de GES(kgeqCO2/m2/an)
Contact RUSSO
Contacter gratuitement à l'aide du formulaire ci-dessous.