ONLY L'Agence Immobilière et Clément VITRY vous proposent cette maison de 154,20 m², construite en 1991 sur une parcelle de 615 m², idéalement située au c?ur de la commune d'Anse.
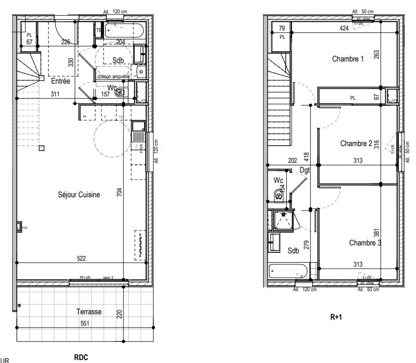
Au rez-de-chaussée, vous découvrirez un séjour cathédrale avec cuisine ouverte, une suite parentale de 17 m² avec salle d'eau de 7 m² et dressing de 5 m², ainsi qu'un bureau pouvant faire office de chambre d'appoint et un WC indépendant. La maison dispose également d'une arrière-cuisine d'été avec cellier.
À l'étage, deux chambres climatisées vous attendent, accompagnées d'une salle de bains avec WC. Vous y trouverez également un grenier aménagé, idéal pour un espace de jeux, de rangement ou un bureau supplémentaire.
Pour votre confort, la maison bénéficie d'un chauffage au gaz, avec plancher chauffant au rez-de-chaussée et radiateurs à l'étage.
Côté extérieur, vous profiterez d'un jardin bien orienté avec terrasse couverte, ainsi que d'un garage offrant un espace pratique pour le stationnement ou le rangement.
Si ce bien vous intéresse, n'hésitez pas à nous contacter pour organiser une visite.
Votre contact : Clément VITRY ? ONLY l'Agence Immobilière.
154 m²
3 084 €
615 m²
4
3
1
2
1991
Américaine
Oui
Consommations énergétiques
Logement économe
156
Logement énergivore (kWhEP/m2/an)
Émissions de gaz à effet de serre
Faible émission de GES
28
Forte émission de GES(kgeqCO2/m2/an)
Contact Clément VITRY
Contacter gratuitement à l'aide du formulaire ci-dessous.