Antibes Proche Plage, appartement 3-pièces, Terrasse et Piscine
Antibes 06160
0
Honoraires à la charge du vendeur.
Les charges de location sont prévisionnelles mensuelles avec régularisation annuelle.
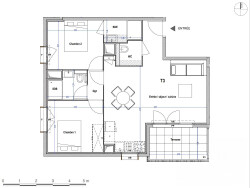
A proximité des plages (accessibles à pied), des commerces, transports et des pôles économiques, au sein de cette résidence à l'architecture moderne et élégante dotée d'une piscine avec pool house au coeur d'un beau jardin paysager, nous vous proposons cet appartement de type 3 pièces en avant dernier étage disposant d'une terrasse.
Cet appartement se compose d'une entrée avec wc desservant un spacieux séjour avec cuisine américaine s'ouvrant sur sa terrasse au Sud, de deux chambres à coucher à l'Ouest dont une en suite avec sa salle d'eau et d'une seconde salle d'eau avec toilettes.
Cet appartement dispose également d'un parking ainsi que d'une cave.
Honoraires à la charge du vendeur. Dans une copropriété de 58 lots. Aucune procédure n'est en cours. Non soumis au DPE. Les informations sur les risques auxquels ce bien est exposé sont disponibles sur le site Géorisques : georisques.gouv.fr. Ce bien vous est proposé par un agent commercial (Entreprise individuelle).
Votre conseiller By Blue Sophia : Florent RAICHLE Agent commercial (Entreprise individuelle) RSAC 52215949000013 NICE