Appartement - 2 Chambres - Possibilité 3 - Véranda - Jardin - Proche centre village
Heyrieux 38540
0
La Team MAUGÉ vous présente ce superbe appartement de 111,3 m², sublimé par une magnifique véranda de 29 m², de beaux volumes, et d'une belle hauteur sous plafond, offrant une sensation d'espace exceptionnelle.
Situé à seulement quelques pas du centre de Heyrieux, dans un environnement calme et prisé, ce bien rare allie charme, luminosité et fonctionnalité.
La présence d'un jardin privatif de 75 m², sans vis-à-vis, vous permettra de profiter pleinement de moments de détente en extérieur.
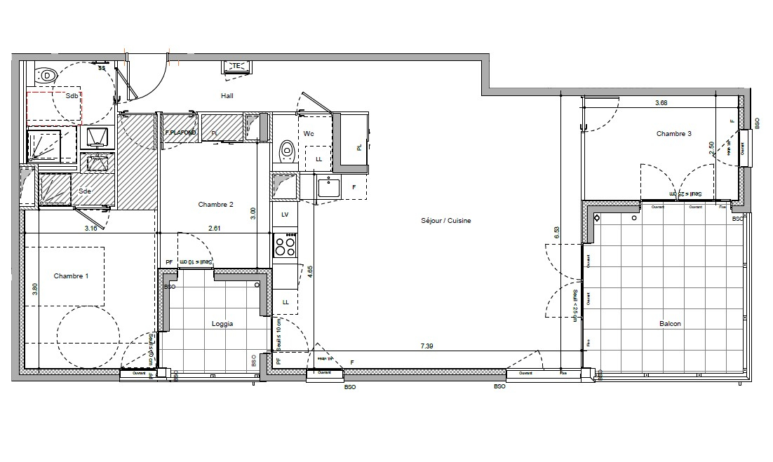
Composition et surfaces :
-Hall d'entrée : 6,4 m²
-Séjour / Cuisine : 41,0 m²
-Couloir : 8,2 m²
-WC : 1,2 m²
-Chambre 1 : 10,8 m²
-Chambre 2 : 12,1 m²
-Salle de bain : 5,9 m²
-Mezzanine de 25,1 m² (avec possibilité de transformer en suite parentale)
-Véranda de29 m²
-Jardin en jouissance privative de 75 m²
Caractéristiques du bien :
-Ancien corps de ferme entièrement réhabilité (2011)
-Très beaux volumes & belle hauteur sous plafond
-Climatisation réversible
- 2 chambres + mezzanine pouvant être facilement transformée
- Magnifique véranda avec vue dégagée plein ouest
- Jardin privatif de 75 m²
-Chauffage électrique
-Fenêtres PVC double vitrage
-Volets roulants PVC
-Place de stationnement attitrée
-Fibre optique
-Taxe foncière d'environ 1000 €
- Petite copropriété de 4 lots (faibles charges)
-Proximité immédiate du centre-ville et des commodités
-DPE 145 (C) GES 4 (B)
-Estimation des dépenses énergétiques : entre 1660 € et 2340 € par an (réf. 2021-2023)
-Informations sur les risques disponibles sur www.georisques.gouv.fr
-Honoraires charge vendeur
- Pas de procédure en cours
Victoria ISSARTEL
Agent Commercial Immobilier ? RSAC 894 837 590 (Lyon) ? EI
MAUGÉ Immobilier
SASU au capital de 10.000 €
RCS n°893 649 889 ? CPI n°38022021000000004 (CCI Nord-Isère)
111 m²
3 144 €
41 m²
3
2
1
1
2009
Consommations énergétiques
Logement économe
145
Logement énergivore (kWhEP/m2/an)
Émissions de gaz à effet de serre
Faible émission de GES
4
Forte émission de GES(kgeqCO2/m2/an)
Contact Elodie Maugé
Contacter gratuitement à l'aide du formulaire ci-dessous.