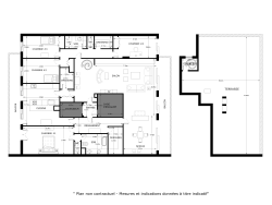
Au coeur du très exclusif Carré d'Or, dans le 8ème arrondissement de Marseille, cet appartement d'exception occupe le dernier étage d'une résidence de standing. Déployant plus de 200 m2 de surfaces élégantes et lumineuses, il séduit par ses volumes remarquables, ses larges baies vitrées, son atmosphère contemporaine, ses terrasses et son vaste rooftop. Ce bien rare offre un formidable potentiel de modernisation et la possibilité d'en faire une résidence luxueuse aux configurations multiples. Accès privilégié et rareté absolue : l'ascenseur dessert directement l'appartement de manière privative grâce à un système sécurisé par clé, garantissant confidentialité, confort et exclusivité. Traversant et ouvert sur deux terrasses baignées de soleil, l'appartement bénéficie d'une double exposition et de vues dégagées. Le grand séjour avec cheminée crée une ambiance chaleureuse et raffinée, avec une salle à manger attenante, l'ensemble se prolonge vers une longue terrasse, assurant une parfaite continuité entre intérieur et extérieur -- un cadre idéal pour recevoir ou se détendre en toute élégance. La cuisine, aux proportions généreuses et entièrement modulable, offre de nombreuses possibilités d'aménagement. Son accès direct à la terrasse prolonge naturellement l'espace vers l'extérieur. L'espace nuit s'organise autour de quatre chambres, conférant à l'ensemble toute la dimension d'un véritable appartement familial, pensé pour associer confort, élégance et qualité de vie. Il séduira également les amateurs de convivialité soucieux de préserver leur intimité, grâce à une remarquable suite parentale offrant indépendance, sérénité et raffinement. Un grand rooftop ensoleillé, aménageable selon l'art de vivre de ses futurs propriétaires -- jardin suspendu, espace lounge, solarium -- vient couronner ce bien unique. Un garage en sous-sol ainsi que deux caves complètent l'ensemble pour un confort optimal au quotidien. Adresse emblématique, architecture élégante, lumière omniprésente et espaces extérieurs rares font de cet appartement un bien singulier, destiné aux amateurs d'exception recherchant prestige et discrétion dans l'un des quartiers les plus prisés de Marseille. Les informations sur les risques auxquels ce bien est exposé sont disponibles sur le site Géorisques : www.georisques.gouv.fr.
201.19 m²
4 449 €
70 m²
5
4
1
1
2
8 sur 8
733.3 € / mois
Oui
1
3
Consommations énergétiques
Logement économe
204
Logement énergivore (kWhEP/m2/an)
Émissions de gaz à effet de serre
Faible émission de GES
41
Forte émission de GES(kgeqCO2/m2/an)
Contact CREMADEZ
Contacter gratuitement à l'aide du formulaire ci-dessous.