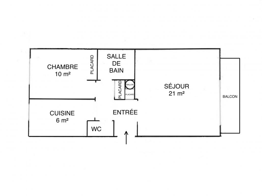
Rue de la Gare, en plein dans le vieux bourg de Chatillon, au pied des commerces et à 5 minutes à pied du tramway T6 dans le vieux bourg, venez découvrir cet appartement de 3/4 pièces, plein de charme, situé dans une petite résidence des années 1900, d'environ 51m² Carrez et 85m² au sol offrant une entrée, un séjour lumineux avec cuisine ouverte, un cellier, deux chambres, une salle d'eau avec wc et une mezzanine idéale pour un bureau ou une chambre d'appoint. Traversant, lumineux et au calme, cet appartement vous séduira par son charme avec ses poutres apparentes et sa situation privilégiée. Une place de parking extérieure complète ce bien. GEOLOCALISATION ET PLAN DISPONIBLE SUR NOTRE SITE! Retrouvez nous sur Instagram @logisconseilimmobilier et Youtube @logisconseil2859
Honoraires à la charge du vendeur. Dans une copropriété de 2 lots. Quote-part moyenne du budget prévisionnel 400 /an. Aucune procédure n'est en cours. Classe énergie D, Classe climat B Montant estimé des dépenses annuelles d'énergie pour un usage standard : entre 1000.00 et 1410.00 sur les années 2021, 2022 et 2023 (abonnements compris). Les informations sur les risques auxquels ce bien est exposé sont disponibles sur le site Géorisques : georisques.gouv.fr.
Votre conseiller LOGIS CONSEIL Châtillon : Hugo VINCENT Agent commercial (Entreprise individuelle) RSAC 902576362
65 m²
5 385 €
36.44 m²
4
2
1
1
2 sur 2
17.00 € / mois
1900
Sud
Nord
1
Oui (2 lots)
Consommations énergétiques
Logement économe
246
Logement énergivore (kWhEP/m2/an)
Émissions de gaz à effet de serre
Faible émission de GES
7
Forte émission de GES(kgeqCO2/m2/an)
Contact Logis Conseil Châtillon
Contacter gratuitement à l'aide du formulaire ci-dessous.