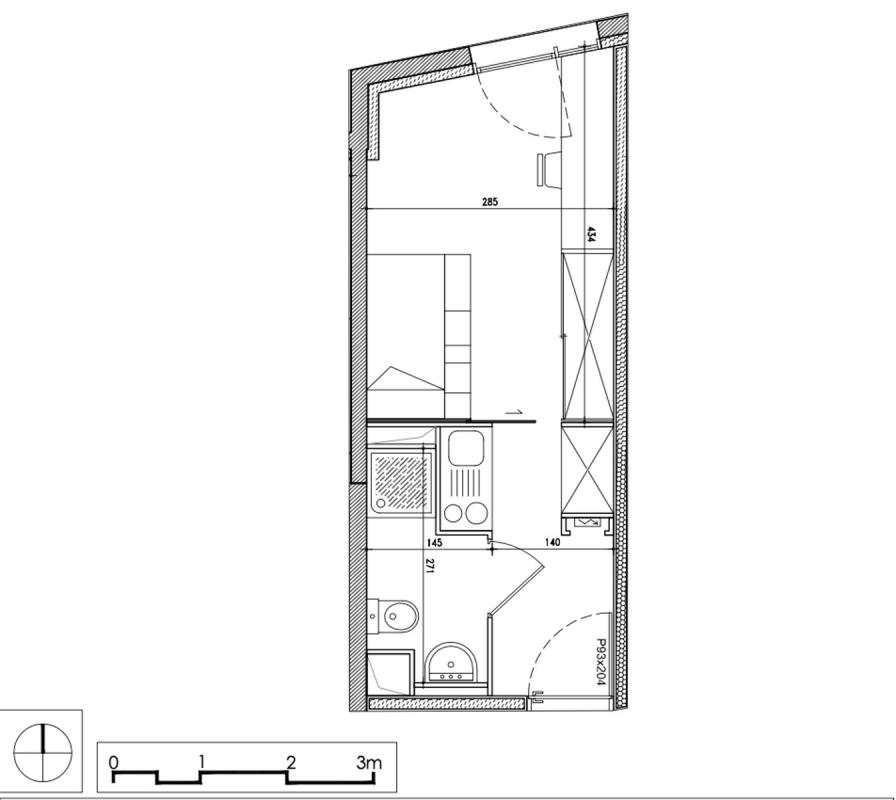
- En vente : à deux pas du tramway Fer à cheval (ligne T1), votre agence KW ADVANCE est heureuse de vous proposer cet appartement 1 pièce de 17 m² à TOULOUSE (31000). Il est composé d'une kitchenette. - Cet appartement est situé au 2e et dernier étage d'un petit immeuble. - Idéal premier achat ou investisseur. - Des écoles de tous niveaux (de la maternelle au lycée) sont implantées à moins de 10 minutes à pied, 10 crèches, tout comme une établissement du supérieur juste à côté : l'Institut catholique de Toulouse. Côté transports en commun, il y a les stations de métro ST CYPRIEN-REPUBLIQUE (ligne A), PALAIS DE JUSTICE (ligne B) et PATTE D'OIE (ligne A) ainsi que la ligne de tramway T1 (Fer à cheval). L'aéroport Toulouse-Blagnac est accessible à 7 km. Pour vos loisirs, vous pourrez compter sur trois tennis et un bassin de natation à proximité. On trouve également des restaurants, des supermarchés, des commerces, des boulangeries, des poissonneries et des épiceries. - Les informations sur les risques auxquels ce bien est exposé sont disponibles sur le site Géorisques : www.georisques.gouv.fr. - N'hésitez pas à prendre contact avec notre agence immobilière KW ADVANCE pour plus de renseignements sur le rendement locatif de cet appartement à vendre.
17 m²
3 975 €
1
1
1
2
1950
Coin cuisine
Consommations énergétiques
Logement économe
440
Logement énergivore (kWhEP/m2/an)
Émissions de gaz à effet de serre
Faible émission de GES
13
Forte émission de GES(kgeqCO2/m2/an)
Contact KW ADVANCE
Contacter gratuitement à l'aide du formulaire ci-dessous.