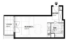
À vendre : Studio lumineux de 30 m2 avec balcon, dans résidence de 2015 de standing Investissement locatif Idéalement situé à deux pas du parc de Parilly. RUE PIERRE STOPPA Séjour avec cuisine ouverte de 27 m2, très lumineux et donnant sur un balcon de 3,5 m2, parfait pour profiter des beaux jours. Sde avec wc Situé au 2 étage sur 4, ce bien bénéficie d'un environnement calme et agréable, Locataire en place, loyer actuel : 650 EUR / mois, offrant un revenu immédiat pour un investissement sécurisé.( locataire cherche un autre appartement, ne restera pas) Ce studio représente une opportunité rare pour un investisseur à la recherche d'un bien clé en main, lumineux, fonctionnel et parfaitement situé. Alliez confort, emplacement et rentabilité dès maintenant ! A voir rapidement Les honoraires sont à la charges du vendeur. N hésitez pas à contacter : Sylvie Marillier au 06.77.86.32.50 Agent commercial au RSAC no 339 167 488 de Lyon. Prix hors frais de notariés d'enregistrement et de publicité.
29.62 m²
4 558 €
3 m²
1
1
1
2 sur 4
60 € / mois
2015
1 (3 m²)
Oui
Oui
Oui
Consommations énergétiques
Logement économe
114
Logement énergivore (kWhEP/m2/an)
Émissions de gaz à effet de serre
Faible émission de GES
21
Forte émission de GES(kgeqCO2/m2/an)
Contact Agence M Life
Contacter gratuitement à l'aide du formulaire ci-dessous.