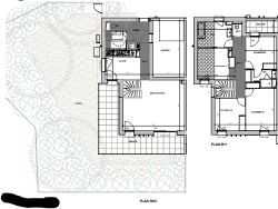
DNEA STUDIO SOMMERVIEU (14400) 2 LIVRAISON NOVEMBRE 2027 SE RENSEIGNER POUR LES REMISES EN COURS LES IMAGES DE PUBLICITE NE SONT PAS CONTRACTUELLES. CPI92012021000000226 B.1.06 1P 1 er étage NORD 32.30m2 259?870 EUR PARKING INCLUS 13?000 EUR
Sommervieu 14400 - 0
... B...
...CPI92012021000000226 C...