A BOULOGNE-BILLANCOURT ! A 5MIN du métro Billancourt!
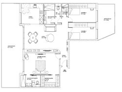
Dans un cadre verdoyant et dans un immeuble sécurisé avec gardien. Situé au rez-de-chaussée, votre Agence IMMOBILYS vous propose un appartement entièrement rénové de 101m² avec deux terrasses de 31,61m² et 19,99m² ! Cet appartement dispose d'un hall d'entrée, séjour double de 27,9m², cuisine aménagée, salle de bains, WC, buanderie, trois chambres (dont une suite parentale de 27,6m² avec chambre, salle de douche/WC et dressing). Le plus, l'ensemble dispose d'un garage en sous-sol et cave.
Travaux réalisés: électricité, cuisine, peinture et sol en 2023!
A découvrir...
Honoraires à la charge du vendeur. Classe énergie E, Classe climat C. Date de réalisation du DPE : 13-06-2021. Les informations sur les risques auxquels ce bien est exposé sont disponibles sur le site Géorisques : georisques.gouv.fr.
101 m²
10 396 €
4
3
1
1
2 (séparés)
1992
1
2
Consommations énergétiques
Logement économe
245
Logement énergivore (kWhEP/m2/an)
Émissions de gaz à effet de serre
Faible émission de GES
14
Forte émission de GES(kgeqCO2/m2/an)
Contact IMMOBILYS SOISSONS
Contacter gratuitement à l'aide du formulaire ci-dessous.