Appartement (18 m²) dans le 8e arrondissement de Lyon
Lyon 69008
0
Honoraires à la charge du vendeur.
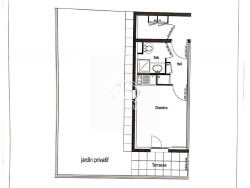
Investissement locatif uniquement! 10 rue Jacqueline Auriol - Lyon 8ème Studio de 18 m2 situé dans la résidence Arts Lumière, à proximité des commerces, de la ligne de tramway T2 permettant de rejoindre facilement la faculté de médecine de Grange-Blanche, Supinfo, La Mâche, et les campus des universités Lyon 2 et Lyon 3 (Berges du Rhône, Manufacture des Tabacs et Porte des Alpes). Accès à une terrasse de 4,6 m² et un jardin de 41m² Studio lié par bail commercial au gestionnaire Cardinal Campus. Loyers garantis de 3 932 H.T. /an Charges de copropriété 235/an Taxe foncière 403 Pour plus d'informations ou pour organiser une visite, contactez dès maintenant votre conseillère immobilière Samantha MENDIBURU 06/52/67/91/40 samantha.mendiburu@cesaretbrutus.com REFERENCE SM-7617 Agent commercial - RSAC 895214526.
Honoraires à la charge du vendeur. Classe énergie D, Classe climat B. Montant moyen estimé des dépenses annuelles d'énergie pour un usage standard, établi à partir des prix de l'énergie de l'année 2019 : 85.00 . Date de réalisation du DPE : 30-07-2015. Les informations sur les risques auxquels ce bien est exposé sont disponibles sur le site Géorisques : georisques.gouv.fr.