Appartement (18 m²) dans le 8e arrondissement de Lyon
Lyon 69008
0
Honoraires à la charge du vendeur.
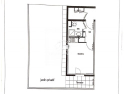
Investissement locatif uniquement. Situé à Lyon 8?, au sein d'une résidence étudiante récente et bien entretenue, studio meublé de 18 m² en rez-de-chaussée. Le bien bénéficie d'un extérieur rare avec une terrasse de 4,6 m² prolongée par un jardin privatif de 41 m², véritable atout pour l'attractivité locative.
Le studio est vendu entièrement meublé, conformément aux standards de la résidence, sans travaux à prévoir.
Le bien est exploité dans le cadre d'un bail commercial avec le gestionnaire reconnu Cardinal Campus, spécialiste des résidences étudiantes. Les loyers sont garantis, sans vacance locative ni gestion à assurer par le propriétaire. Loyer annuel de 3 932 HT, versé régulièrement par le gestionnaire.
Charges de copropriété maîtrisées à 235 /an et taxe foncière de 403 /an, soit un rendement brut d'environ 4 %, cohérent avec le marché des résidences gérées de qualité . Emplacement recherché en zone A, à proximité immédiate du tramway T2 et des principaux pôles universitaires (faculté de médecine de Grange Blanche, universités Lyon 2 et Lyon 3, écoles supérieures), garantissant une forte demande locative étudiante.
Investissement clé en main, idéal pour un statut LMNP avec gestion totalement déléguée.
Dossier complet disponible sur demande (bail commercial, attestation de loyers, charges, taxe foncière, documents de copropriété).
Pour plus d'informations ou organiser une visite : Samantha MENDIBURU 06 52 67 91 40 samantha.mendiburu@cesaretbrutus.com Réf : SM-7617 Agent commercial RSAC 895214526.
Honoraires à la charge du vendeur. Classe énergie D, Classe climat B. Montant moyen estimé des dépenses annuelles d'énergie pour un usage standard, établi à partir des prix de l'énergie de l'année 2019 : 85.00 . Date de réalisation du DPE : 30-07-2015. Les informations sur les risques auxquels ce bien est exposé sont disponibles sur le site Géorisques : georisques.gouv.fr.