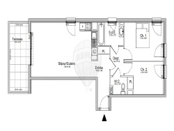
<p style="text-align:center;"><strong>Dernières opportunités encore disponibles !</strong></p><p style="text-align:center;"><strong>Dans une résidence sécurisée et végétalisée proche du centre-ville</strong></p><p style="text-align:center;"><strong>3 pièces - 64,85 m2</strong></p><p style="text-align:center;"><strong> Garanties d'un logement neuf !</strong></p><p style="text-align:justify;">A quelques minutes à pied du centre-ville de St Laurent du Var, de tous ses commerces de proximité et du futur Parc du Square Bénes, venez découvrir ce nouveau programme immobilier composé de trois bâtiments parfaitement implantés afin de profiter de la vue sur les jardins de la résidence. </p><p style="text-align:justify;">La résidence disposera d'une piscine, bordée d'une plage aménagée avec douche extérieure et sanitaires, pour vous rafraîchir durant les mois chauds d'été. Dans cet espace de repos, joliment arboré, vous retrouverez des bancs, une fontaine murale et son bassin d'agrément.</p><p style="text-align:justify;">Sa position dominante vous permet d'apprécier une vue dégagée depuis cet appartement de 3 pièces, d'une superficie de 65,85m2, situé au 2ème étage et dont vous pouvez profiter de sa terrasse d'une surface totale de 10,10m2 une grande partie de l'année avec les belles journées ensoleillées de la Côte d'Azur. </p><p style="text-align:justify;">Le séjour dans lequel vous retrouvez une cuisine ouverte ont accès à la terrasse exposée Sud/Ouest. L'appartement dispose également de deux chambres, d'une salle de bains et d'un WC indépendant.</p><p style="text-align:justify;">Pour plus de confort, cet appartement est vendu avec deux places de stationnements.</p><p style="text-align:justify;">Contactez-moi pour plus de renseignements.</p><p style="text-align:justify;">Ne tardez pas, des appartements ont, d'ores et déjà, été réservés ! (Appartements du T2 au T4 disponibles dans la résidence)</p><p style="text-align:justify;">Votre conseillère en immobilier RE/MAX SUNSET</p><p style="text-align:justify;">Céline DEL GIUDICE</p>
Honoraires à la charge du vendeur.
Bien en copropriété : -- lots.
Pas de procédure en cours.
Les informations sur les risques auxquels ce bien est exposé sont disponibles sur le site Géorisques : www.georisques.gouv.fr .
64 m²
7 044 €
3
2
1
1
2024
Oui
Contact DEL GIUDICE Céline
Contacter gratuitement à l'aide du formulaire ci-dessous.