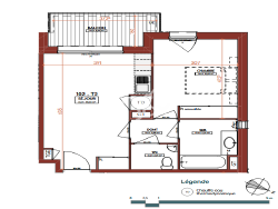
Contactez Magali, IMMOJOY Fonsorbes de 9h à 21h tous les jours pour visiter ce bel appartement de 42,5m2 composé d'une cuisine semi-équipée donnant sur un séjour de 20m2 ouvrant sur un balcon couvert de 6,5m2, d'un dégagement menant au coin nuit comprenant une chambre de 12,5m2 avec placard, une salle de bains et un toilette indépendant.
Ce bien se situe au sein d'une petite résidence fermée et sécurisée de 9 lots construite en 2025, en plein centre de Tournefeuille, proposant tous les avantages de la RE 2020 : climatisation réversible, ballon thermodynamique, menusieries automatisées alu, carrelage 60 x 60, parquet 12mm, ascenseur, pas de logements sociaux. Il bénéficie d'une exposition SO.
2 places de stationnement semi-aériennes complètent le tout. Cette annonce vous est proposée par LAURENT Magali - EI - NoRSAC: 880 666 557, Enregistré à Chambre de commerce et de l'industrie de TOULOUSE
42.63 m²
5 442 €
6 m²
20 m²
2
1
1
1
1 sur 3
15/03/2026
2025
Sud
Ouest
1 (6 m²)
Oui
2
Oui
Oui
Oui
Oui
Oui (9 lots)
Contact LAURENT
Contacter gratuitement à l'aide du formulaire ci-dessous.