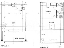
Idéalement situé, venez découvrir cet agréable et lumineux appartement à 2 pas de la place Travot au 2ème étage de la résidence ALTAIR. Il est composé d'une pièce de vie avec coin cuisine de 28m² donnant sur une terrasse de 12 m² avec store banne électrique. WC. En duplex, vous trouverez une mezzanine de 13 m², une chambre et une salle d'eau, wc. Les plus de cet appartement : une place de parking dans le garage fermé du RDC de la résidence. Ascenseur. Placard intégré dans chaque pièce, Exposition Sud Est. Charges de copro mensuelles : 105 euros environ Locataire en place. Cet appartement vous interesse, n'hésitez pas à m'appeler pour organiser une visite. Je vous propose une visite virtuelle sur demande SAS REVO IMMO - SEBAI Heidi EI - O6 72 17 50 87 - Plus d'informations sur www.revo.immo (réf. 4901050380). Agent commercial RSAC ANGERS 889 982 005 Bien soumis au statut juridique de la Copropriété. Pas de procédure en cours. - Honoraires : 4,97 % TTC inclus charge acquéreur (159 000 hors honoraires) - Les informations sur les risques auxquels ce bien est exposé sont disponibles sur le site Géorisques : https://www.georisques.gouv.fr/. Surface CARREZ : 60.2 m²
60.2 m²
2 772 €
28.5 m²
2
1
1
1
2 sur 2
103 € / mois
1994
Électrique
Sud
Est
Oui
1
1
Oui (143 lots)
Consommations énergétiques
Logement économe
159
Logement énergivore (kWhEP/m2/an)
Émissions de gaz à effet de serre
Faible émission de GES
4
Forte émission de GES(kgeqCO2/m2/an)
Contact SAS REVO IMMO
Contacter gratuitement à l'aide du formulaire ci-dessous.