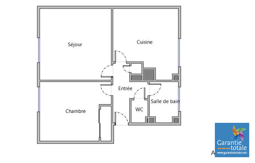
Rue Étienne-Marcel, dans un quartier calme a 800m de Paris 20e . A 4 min à pied du métro : Robespierre (ligne 9) et a 7 min de la place de la République (coeur du Bas-Montreuil) Au 2eme étage sur 3, immeuble ancien avec un beau cachet. Grand 2 pièces de 35m2, lumineux exposé plein sud apportant un maximum de luminosité. doubles vitrages, parquet chêne, cuisine meublée, porte blindée. Entrée 1,64m2 - Salle d'eau 2,1m2 - Cuisine 6,05m2 Séjour 15,69m2 - Chambre 9,32m2 Chauffage et eau chaude individuel au gaz. Classe énergique D. Ravalement de façade votée et payée
/// TRAVAUX DE RÉNOVATION A PRÉVOIR. /// A visiter au plus vite ! 6 912€/m²
A visiter au plus vite !
----------------------------------------------------------------------------------------------------------------------------------------------------------------------------------------------------- NE SOUS-ESTIMEZ PAS VOTRE BIEN! PROPRIÉTAIRES DE MONTREUIL, BAGNOLET, ET DE L'EST PARISIEN, VOUS SOUHAITEZ CONNAITRE LA VALEUR DE RÉEL DE VOTRE BIEN ? CONTACTEZ NOUS AU PLUS VITE, NOUS VOUS PROPOSONS UNE ESTIMATION FIABLE ET GRATUITE. 01 83 72 32 75 . CONTACT@LTIMMOBILIER.FR
Les informations sur les risques auxquels ce bien est exposé sont disponibles sur le site Géorisques : www.georisques.gouv.fr
34 m²
6 912 €
16 m²
2
1
1
2 sur 3
1930
Sud
Nord
Oui
Oui
Oui
Oui
Consommations énergétiques
Logement économe
194
Logement énergivore (kWhEP/m2/an)
Émissions de gaz à effet de serre
Faible émission de GES
40
Forte émission de GES(kgeqCO2/m2/an)
Contact LT Immobilier
Contacter gratuitement à l'aide du formulaire ci-dessous.