Goodshowcase

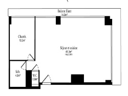
Vente appartement 2 pièces
489 000 €

Contact THEVENIN Pierre

Contacter gratuitement à l'aide du formulaire ci-dessous.


Afficher le téléphone


Annonces similaires

Vente appartement

Puteaux 92800 - 0

530 000 €

...Il est aussi convenu avec cet appartement d'un balcon de 6m² ainsi que d'un parking inclus...

Voir l'annonce

Vente appartement

Puteaux 92800 - 0

489 000 €

...D'une SURFACE PRIVATIVE de 42m², cet appartement vous séduira par ses prestations de qualité et...

Voir l'annonce

Vente appartement

Puteaux 92800 - 0

530 000 €

...Caractéristiques attrayantes : Type : Appartement T2 tout confort Surface : 47m² de pur...

Voir l'annonce

Vente appartement

Puteaux 92800 - 0

449 000 €

...L'adresse est idéalement située, à égale distance des deux centres-villes Suresnes et Puteaux,...

Voir l'annonce

Vente appartement

Puteaux 92800 - 0

480 000 €

...La Galerie Immobilière vous propose ce charmant 3 pièces traversant de 65 m² situé dans une...

Voir l'annonce