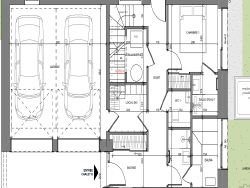
GPKI 2 PIECES OISSEL (76350) 7 LIVRAISON DECEMBRE 2026 SE RENSEIGNER POUR LES REMISES EN COURS LES IMAGES DE PUBLICITE NE SONT PAS CONTRACTUELLES. CPI92012021000000226 LOT 2304 2 pièces 3 ème étage 36.77m2 4.50m2 161?060 EUR PARKING INCLUS
Oissel 76350 - 0
...CPI92012021000000226 LOT 2006 2 pièces Rez de jardin 37...
...CPI92012021000000226 LOT 2102 2 pièces 1...
...CPI92012021000000226 LOT 2104 2 pièces 1...
...CPI92012021000000226 LOT 2204 2 pièces 2...
...CPI92012021000000226 LOT 2302 2 pièces 3...