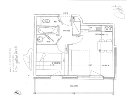
Investissement locatif sous bail commercial résidence gérée Appartement meublé T2 de (attente diags) m2 situé au 2è étage du bâtiment C, comprenant: une entrée-dégagement, un séjour avec kitchenette, une chambre, une salle de bain, un WC, un placard. Un balcon complète ce bien. Bail commercial du 1er octobre 2021 pour une durée de 9 ans, soit jusqu'au 30 septembre 2030. Loyer perçu annuel HT : 2 754,00 EUR Charges générales de copropriété / an :395,00 EUR Taxe foncière :573,00 EUR Pour plus d'informations contactez Patrim Riviera tel 06.07.97.52.91
Bénéficiez de notre pôle dédié à l'achat : service courtage en financement , gestion locative, accompagnement juridique et fiscal.
29.7 m²
1 899 €
2
1
1
1
2008
Contact PATRIM RIVIERA
Contacter gratuitement à l'aide du formulaire ci-dessous.