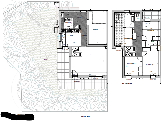
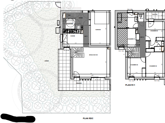
TMTO 2 PIECES FALICON (06950) 3 LIVRAISON DECEMBRE 2025 SE RENSEIGNER POUR LES REMISES EN COURS LES IMAGES DE PUBLICITE NE SONT PAS CONTRACTUELLES. CPI92012021000000226 LOT 11 2P 1 er étage 42.36m2 ANNEXE 9.51m2 383?000 EUR
Falicon 06950 - 0
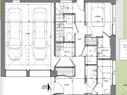
...CPI92012021000000226 LOT 04 1P Rez de chaussée 36...
...CPI92012021000000226 LOT 05 1P Rez de chaussée 36...
...CPI92012021000000226 LOT 06 1P Rez de chaussée 36...
...CPI92012021000000226 LOT 07 1P Rez de chaussée 36...
...CPI92012021000000226 LOT 08 1P Rez de chaussée 34...