MUPTA 3 PIECES MORDELLES (35310 LIVRAISON MARS 2026 SE RENSEIGNER POUR LES REMISES EN COURS LES IMAGES DE PUBLICITE NE SONT PAS CONTRACTUELLES. LA COMMISSION DE L'AGENCE IMMOBILIERE EST PAYEE PAR LE MANDANT. LE PRIX DE VENTE AFFICHE EST HORS FRAIS D'AGENCE. CPI92012021000000226
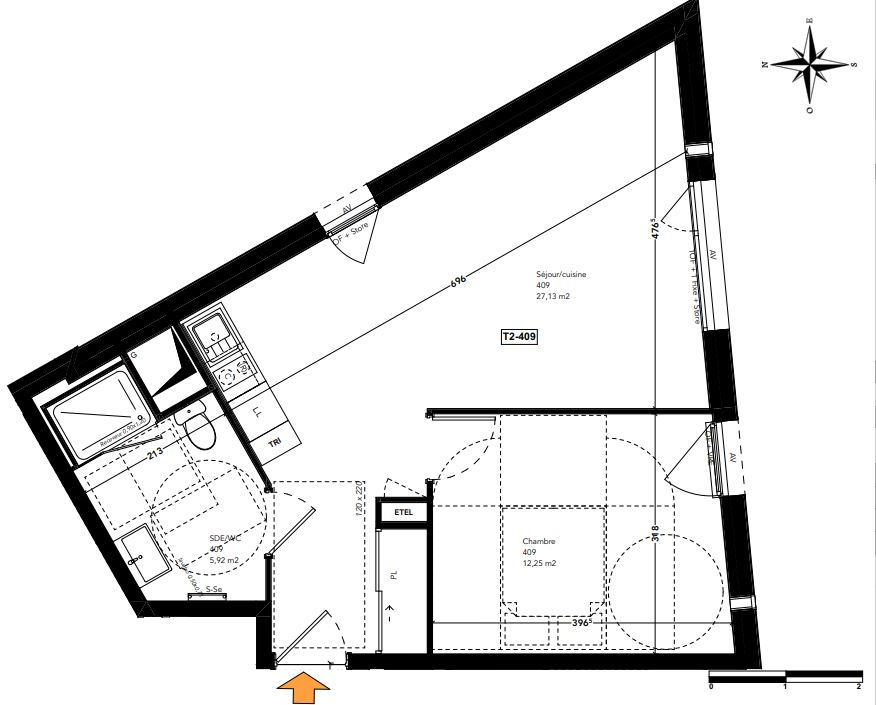
Lot no B002 - Libre Type : 2 pièces Étage : RDC PARKING INCLUS Surface extérieure : 20 m2 Surface habitable : 44.39 m2 Prix total : 224800 EUR (TVA 20%) Les informations sur les risques auxquels ce bien est exposé sont disponibles sur le site Géorisques : www.georisques.gouv.fr