Situé à Gourdon, charmante commune du Lot offrant un cadre de vie paisible et un patrimoine historique et culturel riche, cet appartement T2 de 44 m², vendu loué, constitue une opportunité idéale pour un investissement locatif
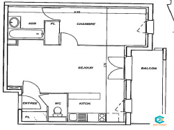
Au premier étage d'une résidence sécurisée, le bien comprend une entrée avec placard, un séjour avec cuisine ouverte donnant sur balcon, une chambre avec placard, ainsi qu'une salle de bain fonctionnelle et WC séparé.
L'appartement dispose également d'une place de parking aérienne et les résidents peuvent profiter d'une piscine commune pendant les beaux jours Côté finances, le loyer actuel est de 456 par mois, la taxe foncière s'élève à 895 (dont 205 de TOM), et les charges de copropriété à 110 par mois
Idéal premier achat, cet appartement offre un revenu locatif immédiat et un investissement sûr dans une commune prisée du Lot À visiter sans tarder opportunité à saisir!
Honoraires à la charge du vendeur. Dans une copropriété de 138 lots. Aucune procédure n'est en cours. DPE en cours. Les informations sur les risques auxquels ce bien est exposé sont disponibles sur le site Géorisques : georisques.gouv.fr.
44 m²
1 125 €
8 m²
24 m²
2
1
1
1 (séparé)
1
2007
Est
Nord
1 (8 m²)
1
Oui
Oui
Oui (138 lots)
Consommations énergétiques
Logement économe
165
Logement énergivore (kWhEP/m2/an)
Émissions de gaz à effet de serre
Faible émission de GES
5
Forte émission de GES(kgeqCO2/m2/an)
Contact C2i SUD OUEST
Contacter gratuitement à l'aide du formulaire ci-dessous.