Goodshowcase
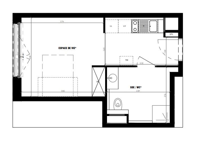
Vente appartement 2 pièces

Vente appartement 2 pièces
325 000 €

Contact Solène DA SILVA

Contacter gratuitement à l'aide du formulaire ci-dessous.


Afficher le téléphone


Annonces similaires

Vente appartement

Paris 75013 - 0

330 000 €

...Plan optimisé (aucune perte de place) et traversant, avec double exposition rue et cour, des...

Voir l'annonce

Vente appartement

Paris 75013 - 0

289 000 €

...Il se compose : d'une ENTRÉE, d'un SÉJOUR exposé OUEST, d'une CUISINE SÉPARÉE (possibilité de...

Voir l'annonce

Vente appartement

Paris 75013 - 0

385 000 €

...Ce bien comprend une entrée, un séjour sur rue, une chambre sur cour avec salle d'eau attenante,...

Voir l'annonce

Vente appartement

Paris 75013 - 0

283 000 €

...Ce bien, entièrement sur COUR et TRAVERSANT, comprend un séjour avec cuisine ouverte toute...

Voir l'annonce

Vente appartement

Paris 75013 - 0

364 000 €

...m2...

Voir l'annonce