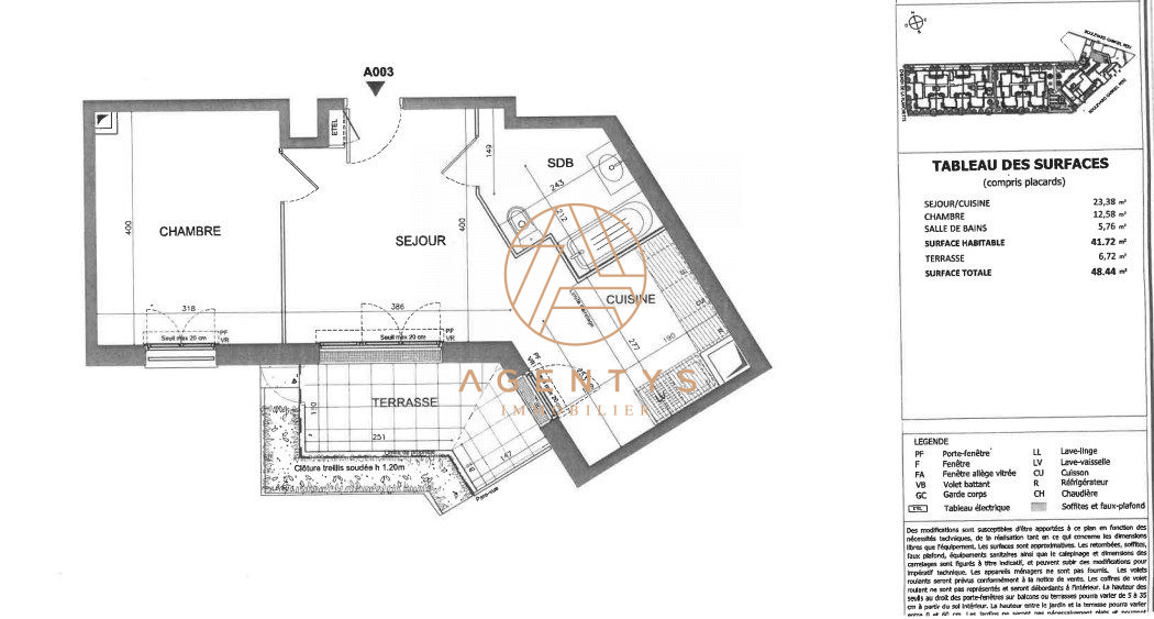
Votre agence SIA IMMOBILIER vous propose : Superbe 2 pièces situé dans une résidence récente et sécurisée, conforme aux dernières normes de construction (RT 2012 / RE 2020).Encore couvert par la garantie décennale pendant 10 ans sur la structure de l'immeuble. Ce beau deux pièces de 47 m2 se compose de :
une entrée avec rangements,
un séjour avec cuisine ouverte exposé Ouest,
une Chambre,
une salle de bain moderne,
et un WC indépendant.
Appartement aux prestations récentes et faibles charges grâce à sa conception basse consommation. Informations complémentaires :
Copropriété de 50 lots répartis sur plusieurs bâtiments de 5 étages
Aucune procédure en cours
Charges annuelles : 1579 EUR
Frais de notaire réduits
Transports à proximité (TCL)
Performance énergétique : Montant estimé des dépenses annuelles d'énergie : entre 170 EUR et 230 EUR (référence 01/01/2021).
Les informations sur les risques auxquels ce bien est exposé sont disponibles sur :www.georisques.gouv.fr Contact : Disponible 7J/7 Barbara 06 89 16 73 49 Photos de l'annonce non contractuelles
47 m²
5 830 €
9 m²
27 m²
2
1
1
1
3 sur 5
131 € / mois
2025
Ouest
1 (9 m²)
Oui
1
Oui
Oui
Consommations énergétiques
Logement économe
66
Logement énergivore (kWhEP/m2/an)
Émissions de gaz à effet de serre
Faible émission de GES
23
Forte émission de GES(kgeqCO2/m2/an)
Contact DIAS Barbara
Contacter gratuitement à l'aide du formulaire ci-dessous.