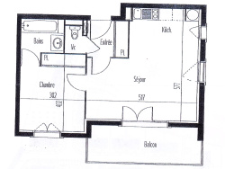
PINEUILH, appartement T2 à louer (Disponible 23 mai 2026) dans résidence sécurisée et calme : entrée avec placard, séjour sur balcon + coin cuisine ouvert et aménagé, Sdb, wc, 1 chambre avec placard. 1 place de parking. Classe énergie D. Loyer : 440 EUR/mois (+ 50 EUR/mois de charges = syndic copro et taxe ordures ménagères). Caution : 440 EUR. Honoraires d'agence locataire pour le locataire : honoraires de visite, de constitution du dossier du locataire et de rédaction du bail : 316,80 EUR + honoraires de réalisation de l'état des lieux : 52,80 EUR soit un total de 369,60 EUR. Réf : pin. Plus de photos sur notre site. CONTACT direct : Cédric au 06 73 34 26 67 (Agent commercial RSAC Agen 532791407). Les informations sur les risques auxquels ce bien est exposé sont disponibles sur le site géorisques : www.georisques.gouv.fr
44 m²
10 m²
25 m²
2
1
1
1
1
369.6 %
50 € / mois
2005
1 (10 m²)
1
Oui (220 lots)
Consommations énergétiques
Logement économe
184
Logement énergivore (kWhEP/m2/an)
Émissions de gaz à effet de serre
Faible émission de GES
5
Forte émission de GES(kgeqCO2/m2/an)
Contact MARCADET
Contacter gratuitement à l'aide du formulaire ci-dessous.