Appartement 2 pièces avec Balcons ? Boulogne-Billancourt, quartier du Trapèze
Boulogne-Billancourt 92100
0
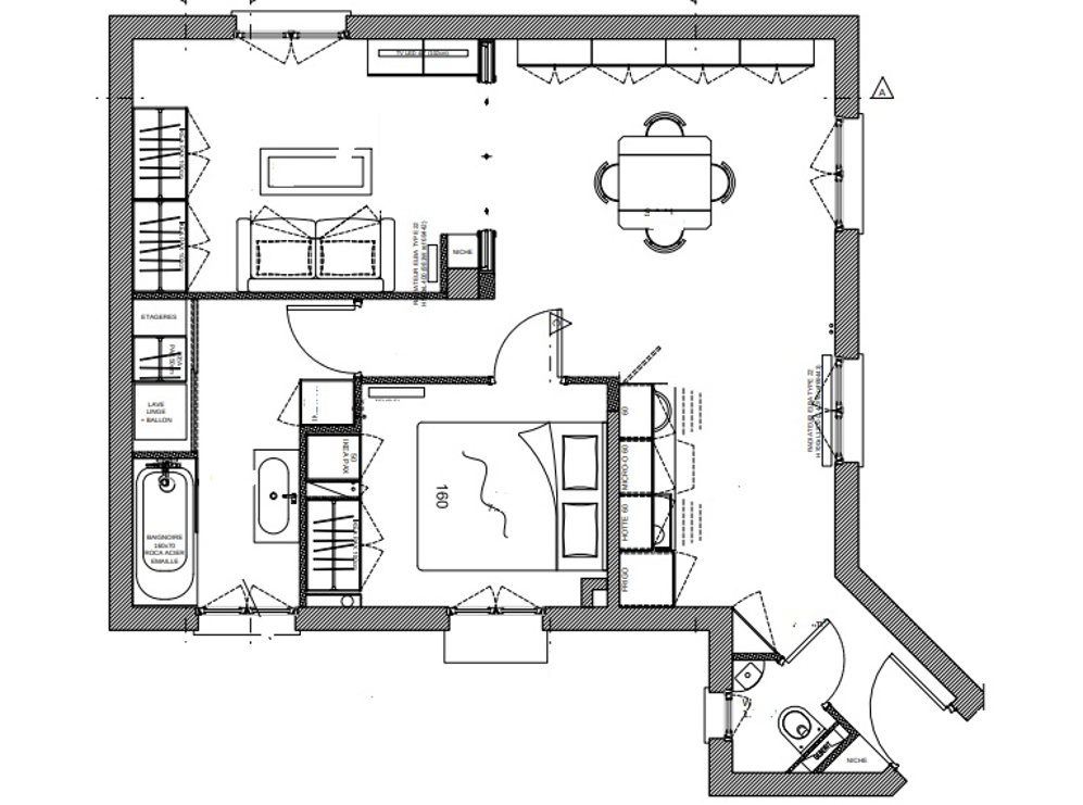
A découvrir cet agréable appartement lumineux de 2 pièces, d'une surface de 42 m², idéalement situé dans le quartier prisé du Trapèze, en bord de Seine à Boulogne-Billancourt.
Installé au 7? étage d'une résidence récente avec ascenseur, ce bien bénéficie d'une belle luminosité et d'une vue dégagée, sans vis-à-vis, sur les bords de Seine.
L'appartement se compose d'un séjour spacieux avec cuisine ouverte, donnant accès à un agréable balcon-terrasse de 6,30 m².
La partie nuit comprend une chambre confortable disposant d'un balcon filant de 3,86 m², ainsi qu'une grande salle d'eau avec toilettes.
L'ensemble est parfaitement agencé, sans perte d'espace, offrant un cadre de vie moderne et fonctionnel.
Un emplacement de parking au premier sous-sol complète ce bien.
Le quartier du Trapèze est particulièrement apprécié pour sa qualité de vie. Vous profitez d'un environnement paisible, à proximité immédiate des commerces, des transports (bus, métro et tramway de l'autre côté de la Seine) et de deux superbes parcs : l'Île Saint-Germain et le parc de Billancourt. La vie culturelle est dynamique, avec la Seine Musicale à quelques minutes à pied.
Les + du bien :
- Luminosité et vue dégagée, sans vis-à-vis
- Deux extérieurs : balcon-terrasse et balcon filant
- Parking en sous-sol et local vélo
- Proximité des commerces, transports et espaces verts
A noter :
- Taxes foncières 2024 : 732 €
- Charges de copropriété: 2 537 €/an (chauffage, eau ascenseur, entretien des parties communes).
- État du bien : Bon état
- Bien soumis au statut de copropriété, 72 lots
- Appartement lot n° 653; Parking lot n°10111
- Pas de procédure en cours
Performance Energétiques :
- Consommation conventionnelle (kWhEP/m2.an) : 130 (C)
- Estimation des émissions (kg CO2/m2.an) : 15 (C)
Prix de vente : 435 000 € (Honoraires à la charge du vendeur)
Vente en délégation de mandat
Ce bien a retenu votre intérêt ? Pour organiser la visite, prenez rendez-vous en ligne au moment qui vous convient le mieux.
Annonce rédigée sous la responsabilité éditoriale de Mme Isabelle BRUT-FRANCIS, agent commercial (EI), immatriculé au RSAC de Nanterre sous le n° 903 553 295.
Bien présenté par Agences de France par délégation.
Agences de France ? SIREN : 899413603 ? Titulaire de la carte T : 29012021000000009 non habilité à percevoir des fonds
Les informations sur les risques auxquels ce bien est exposé sont disponibles sur le site Géorisques : www. georisques. gouv. fr
42 m²
10 357 €
20 m²
2
1
1
1
7 sur 9
Sud
Ouest
Oui
Consommations énergétiques
Logement économe
130
Logement énergivore (kWhEP/m2/an)
Émissions de gaz à effet de serre
Faible émission de GES
29
Forte émission de GES(kgeqCO2/m2/an)
Contact Isabelle FRANCIS
Contacter gratuitement à l'aide du formulaire ci-dessous.