Appartement 2 pièces avec jardin privatif Pomponne, bord d
Pomponne 77400
0
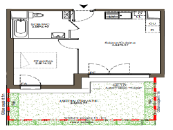
-37,44 m2 situé en rez-de-chaussée, avec un Jardin privatif de 21,28 m2:
Séjour/cuisine ouverte de 20,5 m2, baigné de lumière naturelle grâce aux grandes baies vitrées donnant sur le jardin. Chambre spacieuse de 11,6 m2, Salle de bain moderne avec douche à l'italienne et WC séparés. Cuisine équipée (possibilité d'aménagement sur mesure). Parking sécurisé en sous-sol et local vélos
Les matériaux de qualité, les finitions soignées et l'architecture contemporaine font de cet appartement un lieu où il fait bon vivre.
À 500 m des bords de Marne, Proche des commodités : supermarchés, commerces, écoles, skatepark, et médiathèque à moins de 10 minutes à pied. Transports optimaux : bus direct pour la gare Transilien P (9 min), liaison vers Paris Gare de l'Est en 24 min. Accès rapide à la Francilienne et à l'A4 pour rejoindre Marne-la-Vallée, Disneyland Paris ou l'aéroport Charles-de-Gaulle en quelques minute
Contactez-nous dès aujourd'hui pour organiser une visite et imaginez-vous vivre dans ce cadre idyllique. Photos non contractuelles Pas de frais d'agence, Frais de notaire réduits
37 m²
7 016 €
2
1
1
1
1
Consommations énergétiques
Logement économe
91
Logement énergivore (kWhEP/m2/an)
Émissions de gaz à effet de serre
Faible émission de GES
10
Forte émission de GES(kgeqCO2/m2/an)
Contact AMAR Denis
Contacter gratuitement à l'aide du formulaire ci-dessous.