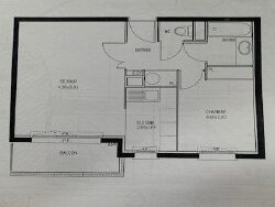
vendre : Charmant appartement 2 pièces à Aubervilliers Découvrez ce lumineux appartement de 2 pièces, idéalement situé dans un immeuble moderne construit en 2006. Niché au 2ème étage avec ascenseur, cet espace de vie agréable et fonctionnel vous séduira par ses nombreux atouts. Caractéristiques de l'appartement : Séjour spacieux : Bénéficiez d'un vaste séjour ouvert sur une cuisine moderne, parfaite pour recevoir vos amis ou profiter de moments en famille. Balcon privatif : Détendez-vous sur votre balcon sans vis-à-vis, un véritable atout pour savourer vos moments de tranquillité. Chambre confortable : La chambre est équipée d'un placard, offrant un espace de rangement pratique. Travaux à prévoir : Vous n'avez aucun travaux à effectuer, vous pouvez emménager immédiatement ! Place de parking extérieure : Profitez d'un stationnement facile grâce à votre place de parking dédiée. Emplacement privilégié : Situé à seulement quelques pas du métro 4 Chemins, cet appartement est idéal pour les citadins cherchant à allier confort et accessibilité. Vous serez également à proximité des commodités et des services, facilitant ainsi votre quotidien. Ne laissez pas passer cette opportunité ! Contactez-nous dès aujourd'hui pour organiser une visite et découvrir votre futur chez-vous.
Honoraires à la charge du vendeur. Dans une copropriété de 30 lots. Quote-part moyenne du budget prévisionnel 1 800 /an. Aucune procédure n'est en cours. Classe énergie D, Classe climat B Montant estimé des dépenses annuelles d'énergie pour un usage standard : entre 860.00 et 1210.00 sur les années 2021, 2022 et 2023 (abonnements compris). Les informations sur les risques auxquels ce bien est exposé sont disponibles sur le site Géorisques : georisques.gouv.fr.
42.2 m²
5 569 €
2
1
1
1 (séparé)
2 sur 5
140.00 € / mois
1
Oui
Oui (30 lots)
Consommations énergétiques
Logement économe
249
Logement énergivore (kWhEP/m2/an)
Émissions de gaz à effet de serre
Faible émission de GES
7
Forte émission de GES(kgeqCO2/m2/an)
Contact TIKVA IMMOBILIER
Contacter gratuitement à l'aide du formulaire ci-dessous.