Appartement vendu occupé, générant 7093 € de loyers annuels.
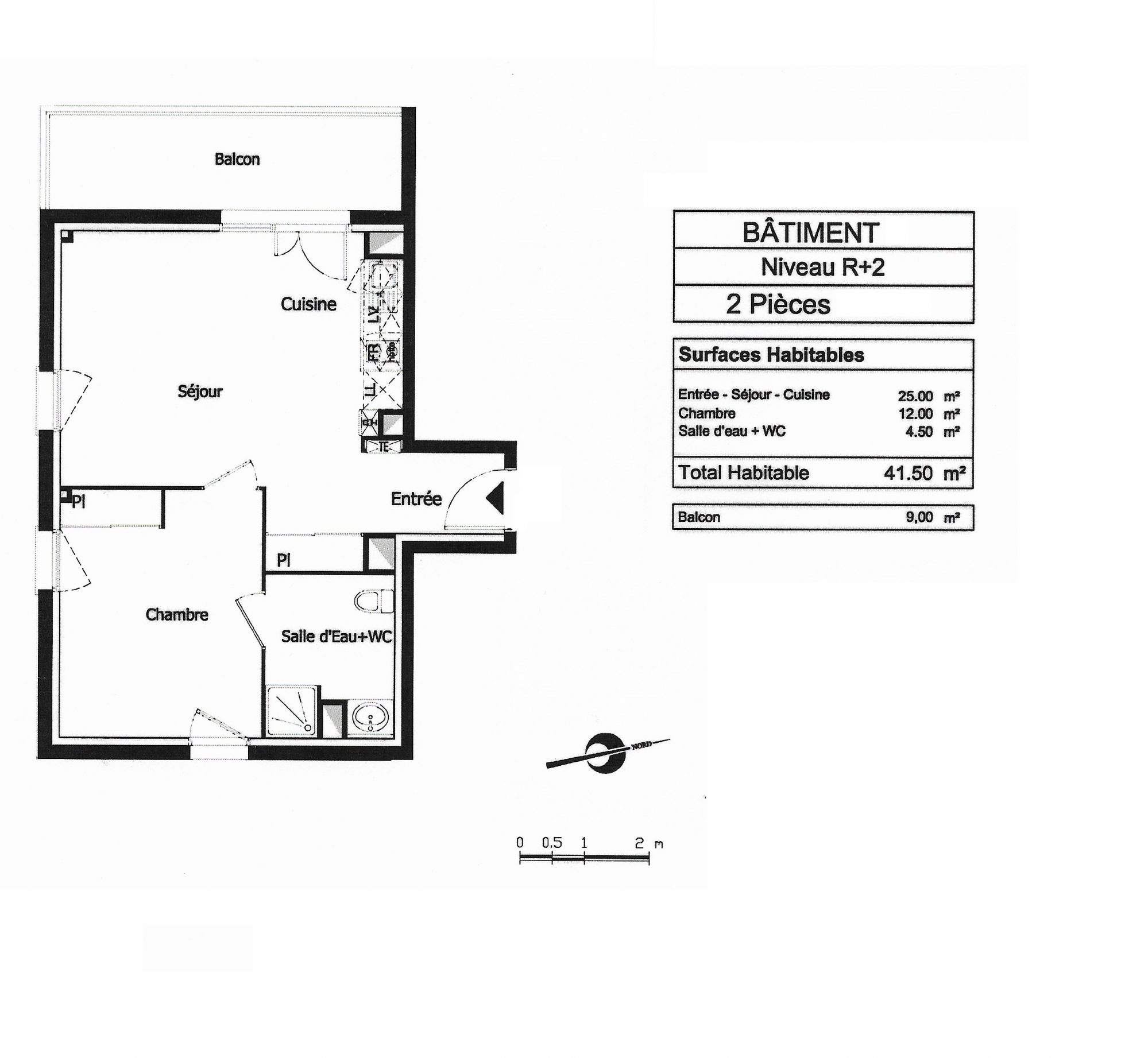
Découvrez cet appartement confortable d'environ 47 m² dans une copropriété bien entretenue, idéalement situé à proximité du centre de Cadaujac. Il se compose d'une chambre, d'une salle de bains et d'un espace de vie lumineux, agrémenté d'une belle terrasse pour profiter des belles journées ensoleillées.
À quelques pas de chez vous, vous trouverez la gare de Cadaujac, accessible en 300 mètres, facilitant vos déplacements. Pour les amoureux de nature, le Parc du Château, distant de seulement 600 mètres, est l'endroit parfait pour se détendre et se balader. Également à proximité, le Parc de la Paix se trouve à 700 mètres, offrant un cadre agréable pour des activités en plein air.
Caractéristiques techniques :
- Taxe foncière : 864 €
- Charges de copropriété : 109 € / mois
- DPE : D
- Mode de chauffage : Électricité
- Mode de distribution de l'eau : Électricité
Les informations sur les risques auxquels ce bien est exposé sont disponibles sur le site Géorisques : (http://www.georisques.gouv.fr/)
Intéressés ? Contactez Zefir pour visiter ce bien.