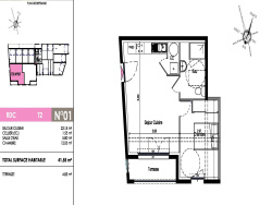
Dans la commune d'Elne, Pierre DORNIER (06 11 03 47 20), votre conseiller immobilier de l'agence LAVILLE IMMO vous propose un appartement de type T2 ayant un séjour cuisine équipée, une chambre et terrasse. Bâtiment respectant les normes d'accessibilité. Prestations de qualité : cuisine équipée, menuiseries coulissantes en aluminium, douche à l'italienne, double vitrage, volets roulants électriques, carrelage en grès cérame 60x60, climatisation gainable, visiophone. Situé à proximité du centre ville, le logement est au rez-de-chaussée. Possibilité d'acheter en complément une place de parking, box ou garage.
Bien soumis au statut de la copropriété. 13 appartements. Contactez le 06 11 03 47 20. Agence LAVILLE IMMO, Pierre DORNIER, 'E.I' - RSAC No828 832 824. Ville du greffe : PERPIGNAN
La commune d'Elne, petite ville de 8600 habitants se situe à proximité des plages, à 4 km de Saint Cyprien et 15km au sud de Perpignan.
40.9 m²
3 716 €
2
1
Sud
Oui
1
Oui
Oui
Oui
Oui (13 lots)
Contact DORNIER
Contacter gratuitement à l'aide du formulaire ci-dessous.