APPARTEMENT 2 PIÈCES LUMINEUX AVEC STATIONNEMENT - CHARTRES
Chartres 28000
0
Honoraires à la charge du vendeur.
APPARTEMENT 2 PIÈCES LUMINEUX AVEC STATIONNEMENT
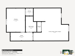
Bienvenue dans votre futur chez-vous ! Nous sommes ravis de vous présenter cette exclusivité un (T2), bénéficiant de notre pack visibilité. Profitez de notre visite virtuelle et de photos haute qualité pour découvrir cette belle opportunité à saisir, située dans une résidence construite en 1985, au 3ème et dernier étage, à Chartres.
DÉCOUVREZ L'INTÉRIEUR :
-Un séjour lumineux, -Une cuisine ouverte, aménagée et équipée, -Une chambre avec dressing, -Une salle de bains avec WC.
ESPACE EXTÉRIEUR & STATIONNEMENT :
-Stationnement dans un box fermé.
CÔTÉ CONFORT :
-Chauffage individuel, -Fenêtres en PVC avec double vitrage, -Lumineux.
L'EMPLACEMENT :
-Bus à 5 minutes à pied, -Écoles à 5 minutes à pied, -Restaurants à 15 minutes à pied, -Médecins généralistes à 10 minutes à pied, -Crèche à 15 minutes à pied,
N'hésitez pas à contacter votre agent au Noeud Pap' pour obtenir plus d'informations et organiser une visite de cet appartement à Chartres !
Honoraires à la charge du vendeur. Dans une copropriété de 77 lots. Aucune procédure n'est en cours. Classe énergie D, Classe climat D Montant moyen estimé des dépenses annuelles d'énergie pour un usage standard, établi à partir des prix de l'énergie de l'année 2021 : entre 995.00 et 1348.00 . Les informations sur les risques auxquels ce bien est exposé sont disponibles sur le site Géorisques : georisques.gouv.fr.