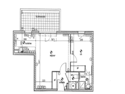
*** OPPORTUNITE INVESTISSEUR *** Dans une résidence calme et bien entretenue, au 4ème et dernier étage avec ascenseur, nous proposons à la vente cet appartement 2 pièces de 45 m2 vendu loué. Particulièrement agréable à vivre et lumineux, ce bien est composé d'un séjour/cuisine de 26 m2 s'ouvrant à l'ouest sur une belle terrasse de 10m2, d'une chambre avec placard intégré, d'une salle d'eau, d'une entrée avec penderie et d'un WC séparé. Locataire sérieuse en place depuis janvier 2022 - Loyer : 758 EUR dont 100 EUR de provision sur charges (bail non meublé). Résidence fermée et sécurisée avec un bel espace vert bien entretenu. A noter : l'appartement est vendu avec un box fermé en sous-sol. Copropriété de 172 lots - 123/10000èmes - Pas de procédure en cours. Pour plus d'informaiton ou une visite, contacter Elodie Sanz Vico, Agent EXPERTIMO RSAC 523 234 349 Cette annonce vous est proposée par SANZ VICO Elodie - SAS - NoRSAC: 523234359, Enregistré à Greffe du tribunal de commerce de MARSEILLE - Annonce rédigée et publiée par un Agent Mandataire -
45.4 m²
2 203 €
21 m²
2
1
1
1
4 sur 4
2005
Oui
1
Oui
1
Oui
Oui
Consommations énergétiques
Logement économe
144
Logement énergivore (kWhEP/m2/an)
Émissions de gaz à effet de serre
Faible émission de GES
4
Forte émission de GES(kgeqCO2/m2/an)
Contact SANZ VICO
Contacter gratuitement à l'aide du formulaire ci-dessous.