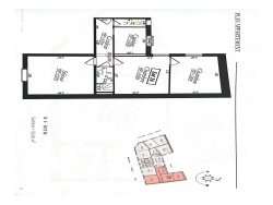
SOUS PROMESSE ! Aux portes de Paris, dans un immeuble totalement rénové avec ascenseur et interphone : parties communes et parties privatives. Découvrez un charmant 3 pièces situé au quatrième étage avec parquet, hauteur sous plafond de 2,61m, double vitrage. Il bénéficie d'un beau séjour exposé plein Sud, de deux chambres, d'un espace cuisine, d'une salle d'eau avec porte-sèche-serviettes ainsi que des toilettes séparées. Une cave complète le bien. Idéalement situé à proximité immédiate des commerces et à moins de 10 minutes à pied des lignes de métro 13 et 4. Charges annuelles 928,25 EUR, pas de procédures en cours. Prix 381 600 EUR honoraires charge vendeur. Les informations sur les risques auxquels ce bien est exposé sont disponibles sur le site Géorisques : www.georisques.gouv.fr.