Appartement 3 pièces ? Balcon, ascenseur, box fermé en option
Montrouge 92120
0
Jonathan Guillou vous propose ce bien :
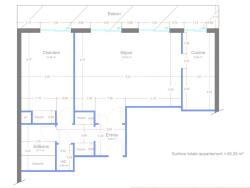
Situé à seulement 8 minutes à pied du métro Mairie de Montrouge (ligne 4), cet appartement 2/3 pièces de 46,35 m² Carrez se trouve au 3? étage d'un immeuble bien entretenu des années 1980, équipé d'un ascenseur. Il se compose d'une entrée avec rangements, d'un séjour lumineux donnant accès à un balcon filant de 10,90 m² exposé SE, d'une cuisine séparée, d'une chambre, d'un couloir avec placards, d'une salle de bains et de WC indépendants. Le plan est particulièrement fonctionnel, sans perte d'espace.
L'appartement est en bon état général. Il bénéficie de prestations confortables telles que des volets roulants, du double vitrage, chauffage collectif et eau chaude collective. Un box fermé en sous-sol sécurisé est proposé en option et pourra être vendu avec l'appartement.
Le bien peut donc être vendu soit occupé, soit libre, en fonction du profil de l'acquéreur. L'appartement est actuellement loué (bail non meublé) au montant de 1 139 € hors charges par mois, avec 140 € de provisions mensuelles. Un congé pour vente sera délivré en janvier 2026, ce qui permet une libération potentielle en juillet 2026.
Les charges de copropriété s'élèvent à environ 140 € par mois et la taxe foncière 2025 est de 676 €. Le quartier est calme et résidentiel, à proximité immédiate des commerces, écoles et espaces verts, tout en offrant un accès rapide à Paris via le métro ligne 4.
N'hésitez pas à me contacter pour plus d'informations ou pour convenir d'une visite.
Jonathan Guillou 06 62 36 10 87nLes informations sur les risques auxquels ce bien est exposé sont disponibles sur le site Géorisques : www.georisques.gouv.fr
46 m²
7 283 €
3
1
1
1
3 sur 5
1980
Séparée
Sud
Est
Oui
Consommations énergétiques
Logement économe
204
Logement énergivore (kWhEP/m2/an)
Émissions de gaz à effet de serre
Faible émission de GES
78
Forte émission de GES(kgeqCO2/m2/an)
Contact GUILLOU
Contacter gratuitement à l'aide du formulaire ci-dessous.