A vendre quartier Fougères, bel appartement de type 3 entièrement rénové au calme d'une impasse. Il vous séduira par sa rénovation de qualité et son exposition idéale.
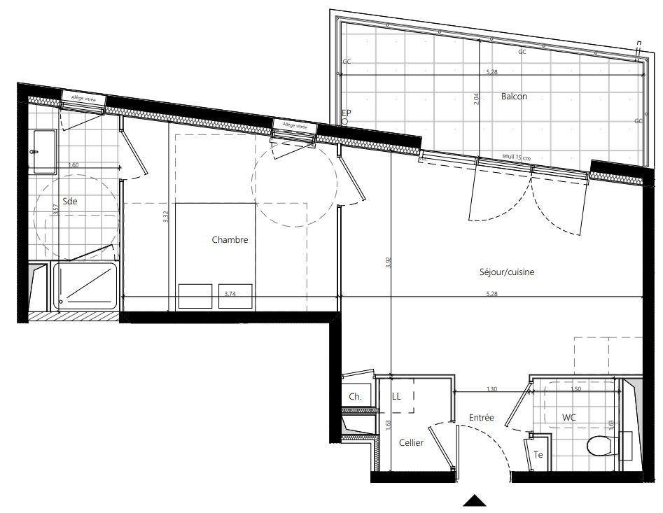
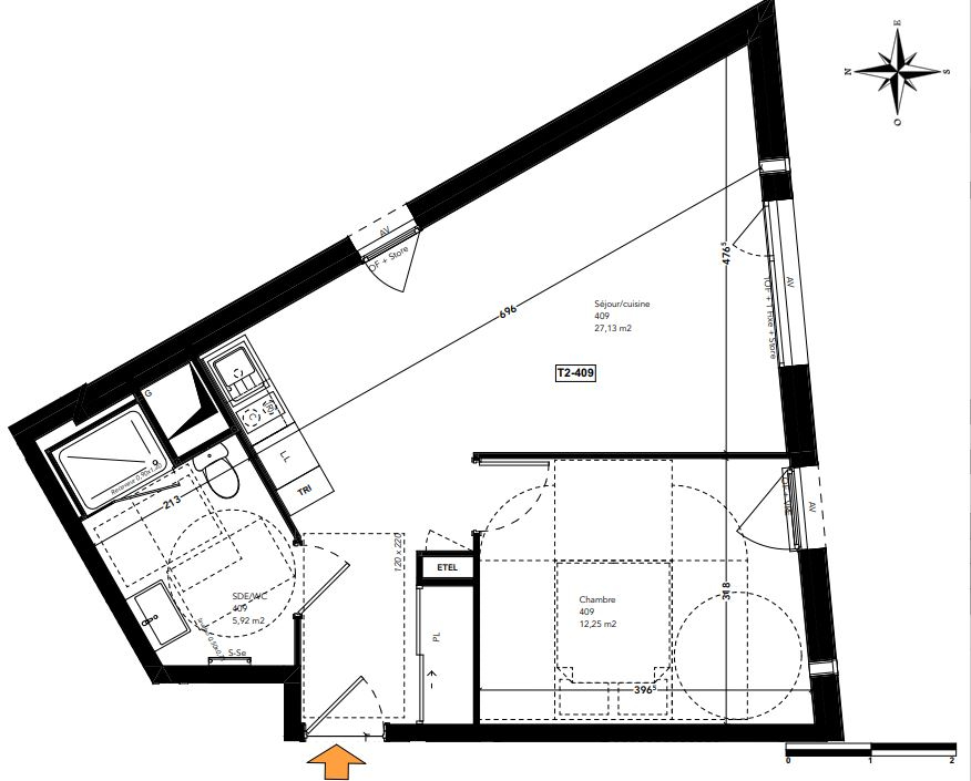
Bien agencé, il se compose d'une entrée avec rangements, un séjour lumineux, une cuisine contemporaine aménagée et équipée, 2 chambres, un WC et une jolie salle d'eau.
En plus d'une cave en sous-sol, il dispose également de 2 places de stationnements.
Le bien comprend 4 lots, et il est situé dans une copropriété de 115 lots (les charges courantes annuelles moyennes de copropriété sont de 940 € et le syndicat des copropriétaires ne fait pas l'objet d'une procédure citée à l'article L. 721-1 du code de la construction et de l'habitation).
Les informations sur les risques auxquels ce bien est exposé sont disponibles sur le site Géorisques : www.georisques.gouv.fr
Prix de vente honoraires d'agence inclus : 239 500 €
Prix de vente hors honoraires d'agence : 230 000 €
Honoraires charge acquéreur : 9 500 € soit 4,13 % TTC de la valeur du bien hors honoraires
Contactez votre consultant megAgence : Loïc BOUETTE, Tél. : 0607720485, E-mail : loic.bouette@megagence.com - EI - Agent commercial immatriculé au RSAC de RENNES sous le numéro 925 375 842
60 m²
3 992 €
3
2
1
1
1
1963
Consommations énergétiques
Logement économe
168
Logement énergivore (kWhEP/m2/an)
Émissions de gaz à effet de serre
Faible émission de GES
35
Forte émission de GES(kgeqCO2/m2/an)
Contact Marc Lelogeais
Contacter gratuitement à l'aide du formulaire ci-dessous.