Honoraires à la charge de l'acquéreur (Prix hors honoraires : 368000 euros).
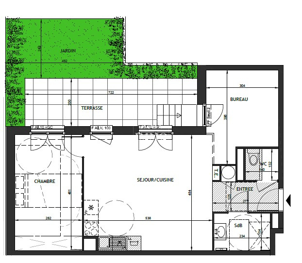
F3 DE STANDING AU DERNIER ÉTAGE AVEC 3 BALCONS RÉSIDENCE 2026 Au sommet d'une résidence neuve de très grand standing livrée en 2026, découvrez ce somptueux F3 en dernier étage, rare sur le marché, offrant trois magnifiques balcons et une qualité de vie exceptionnelle. Dès l'entrée, l'appartement séduit par ses volumes élégants, sa luminosité traversante et ses prestations contemporaines haut de gamme. Conçu selon les toutes dernières normes d'isolation thermique et phonique, il garantit confort, calme et performances énergétiques optimales. Un art de vivre unique Les trois beaux balcons, accessibles depuis les pièces de vie et les chambres, offrent des espaces extérieurs multiples pour profiter du soleil à toute heure, admirer les couchers de soleil ou savourer des instants de détente en toute intimité. Agencement raffiné :
Séjour spacieux et baigné de lumière
Cuisine moderne (ouverte ou indépendante)
Deux belles chambres avec accès balcon
2 salles d'eau contemporaine
Rangements intégrés et finitions soignées
Confort et sécurité :
Deux places de stationnement en sous-sol sécurisé, un vrai luxe en coeur de secteur
EMPLACEMENT D'EXCEPTION Adresse très recherchée, proche de toutes commodités, transports, écoles et centres d'intérêt, dans un environnement valorisant et pérenne. Un bien rare, élégant et lumineux, pensé pour ceux qui veulent le meilleur : le calme du dernier étage, la modernité du neuf, et le privilège de plusieurs extérieurs. Un appartement qui ne se visite pas... il se vit.
68 m²
5 632 €
3 m²
29 m²
3
2
2
2
2 sur 2
4.08 %
2026
Sud
Ouest
3 (3 m²)
2
Oui
Oui (11 lots)
Consommations énergétiques
Logement économe
100
Logement énergivore (kWhEP/m2/an)
Émissions de gaz à effet de serre
Faible émission de GES
6
Forte émission de GES(kgeqCO2/m2/an)
Contact VALTEAU
Contacter gratuitement à l'aide du formulaire ci-dessous.