Appartement 3 pièces 62 m2 avec terrasse - immeuble rénové a
Lodève 34700
0
Honoraires à la charge du vendeur.
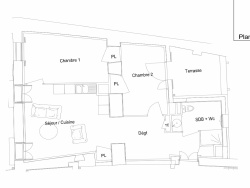
Lodève Ilot Fleury lot 2 de 62,98 m2 et sa terrasse de 7,39 m2. Caroll de l'agence BEAUFILS immobilier & patrimoine a le plaisir de vous proposer la commercialisation de plusieurs appartements rénovés, à Lodève en plein centre-ville / coeur de ville mais attention petite particularité, ce dispositif est sous condition de ressource pour permettre l'accession à la propriété pour tous. Je m'explique, afin de pouvoir acquérir l'un des appartements proposés ci-dessous, il vous sera demandé de répondre aux critères d'éligibilité, à savoir si vos revenus N-1 (revenu fiscal de référence indiqué sur votre relevé d'impôts de l'année précédente) / (voir revenu fiscal de votre dernier avis d'imposition) ne dépasse pas le seuil imposé par le dispositif ANAH 2024 soit : Nombre de personnes composant le ménage : 1 personne = 22 015 euros 2 personnes = 32 197 euros 3 personnes = 38 719 euros 4 personnes = 45 234 euros 5 personnes = 51 775 euros Par personne supplémentaire = 6 525 euros Si vous respectez ces conditions de ressources je vous invite à lire la suite de cette annonce. Insufflé dans le cadre d'une opération de revitalisation du centre ancien, l'ilot Fleury, qui est l'ancienne boulangerie Sancho, va bientôt être composé de 9 logements (appartements) rénovés pour s'adapter à nos modes de vie d'aujourd'hui et pour être aux normes énergétiques (confort thermique). C'est le principe de poser ses valises dans un appartement refait du sol au plafond, avec le cachet de l'ancien, dans un immeuble typique des bâtiments dans le centre ancien de Lodève ! Objet de cette annonce, la vente du lot numéro 2 Détail du lot 2 = 62,98 m2 et sa terrasse de 7,50 m2, au premier étage de la résidence, au prix de 102 657 euros Le logement sera rénové pour février 2027 ! Informations diverses : Au sous-sol se trouvera un local technique commun buanderie commune, qui va pouvoir accueillir votre machine à laver si vous le souhaitez, le but est d'optimiser les lieux pour le confort des habitants et gagner de l'espace dans son logement, Copropriété à échelle humaine 9 appartements, c'est un peu le principe de vivre dans un lieu agréable, au coeur de ville, à coté de toutes les commodités en connaissant ses voisins, Au RDC un local vélo commun, L'immeuble sera équipé d'un ascenseur, parfait pour une accessibilité optimale, ce qui est assez rare dans l'ancien, La commune de Lodève est située dans le département de l'Hérault, en région Occitanie. Elle fait partie de la Communauté de communes du Lodévois et Larzac. A seulement 30 minutes de Montpellier, par l'autoroute A75 (autoroute gratuite), elle offre une qualité de vie nichée dans un environnement agréable, cirque de Navacelle, Lac du Salagou à proximité. Un environnement économique avec sa zone d'activité mais surtout son centre-ville dynamique, premier centre commercial du Lodèvois - Larzac. Elle ne manque pas également de culture avec une médiathèque, cinéma, festivals, sports, des écoles de la maternelle au lycée et se veut rassurante avec son pôle médical, son hôpital et sa clinique. Bref il fait bon vivre à Lodève.
Des photos complémentaires, des vidéos et des dossiers techniques sont à votre disposition sur demande par mail ou par téléphone, ou sur mon instagram : @carolldewezleroy Pour un échange téléphonique ou tout autre renseignement, Caroll 06 ,;, 63,;, 60,;, 77,;, 96. - carollimmobilier@gmail.com - 829 224 617 R.S.A.C Montpellier
France - 34 - Occitanie - Hérault - occupation - appartement - centre ville - autoroute - A75 - urbain - commodités - supermarché - Invest - investissement locatif - Clermont l'hérault - Gignac - rénovation - VIR - vente - résidence principale - pas de travaux - DPE - balade - randonnée - rivière - UNESCO - Soumont - Soubès - le Bosc - Octon - Liausson
60 m²
1 711 €
3
2
Oui
Oui (9 lots)
Contact DEWEZ-LEROY
Contacter gratuitement à l'aide du formulaire ci-dessous.