Appartement 3 Pièces 65m2 Pornichet Plage & Centre à Pied
Pornichet 44380
0
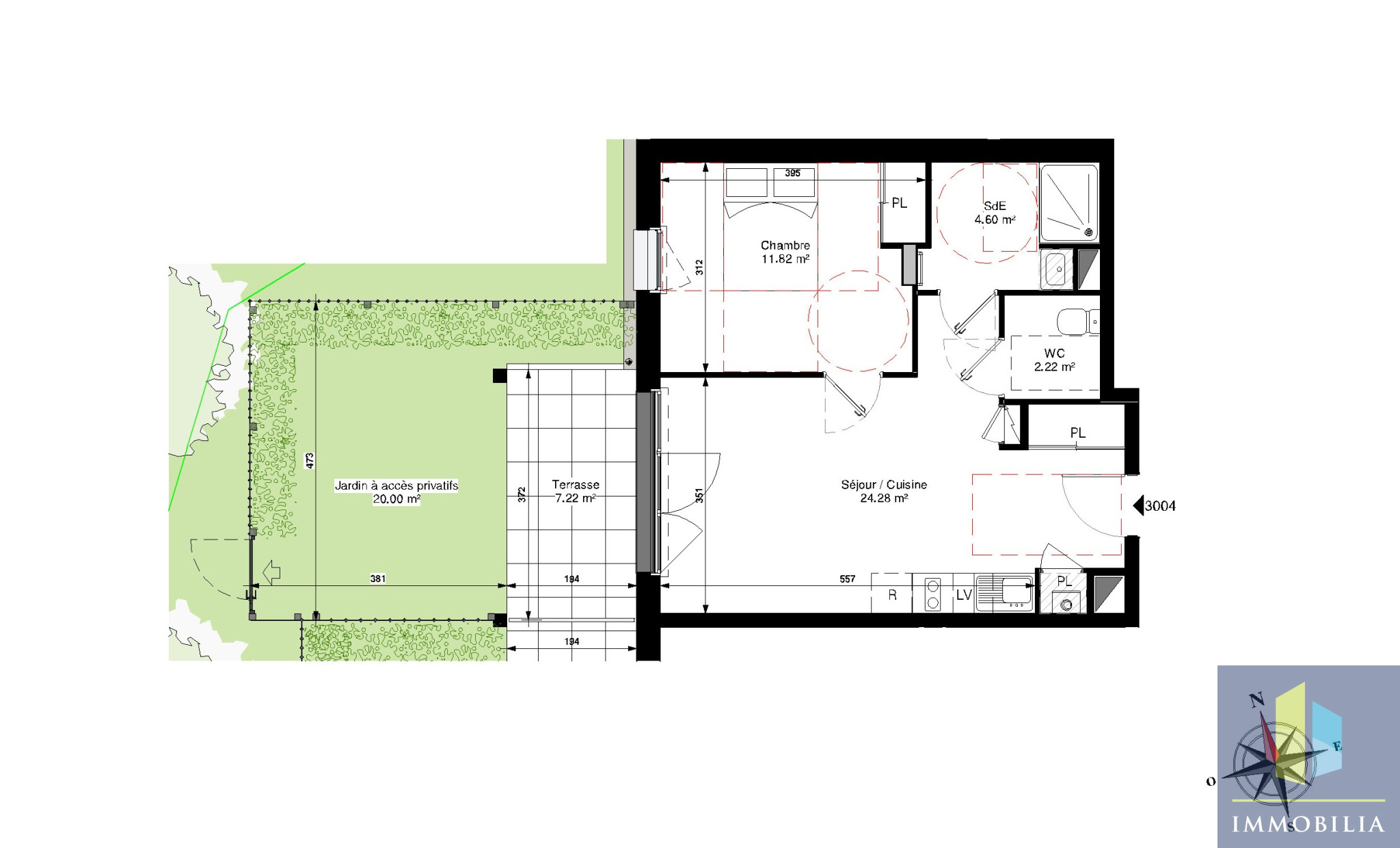
Emplacement privilégié Plage et centre-ville accessibles à pied Situé à Pornichet, dans un environnement calme et résidentiel, cet appartement 3 pièces de 65 m2 vous séduira par sa situation exceptionnelle, à quelques pas de la plage, du centre-ville, des commerces et des transports. Au sein d'une résidence récente de standing aux dernières normes énergétiques RE 2020, Ce bien se compose d'un vaste séjour-cuisine de 35m2 avec balcon. Cote nuit 2 chambres une salle de douche et wc. Prestations haut de gamme, plan optimisé. 1 place de stationnement. Charges maitrisées, PTZ, pas de frais d'agence. Pour plus d'informations contactez l'agence joignable 7/7 Visuels non contractuels.
64.7 m²
5 116 €
31 m²
3
2
1
1
Est
Oui
2
Oui
Consommations énergétiques
Logement économe
51
Logement énergivore (kWhEP/m2/an)
Émissions de gaz à effet de serre
Faible émission de GES
10
Forte émission de GES(kgeqCO2/m2/an)
Contact Baracchini
Contacter gratuitement à l'aide du formulaire ci-dessous.