Appartement Neuf 3 Pièces avec Terrasse - Vue Dégagée sur les Champs Résidence de Standing Route de Bitche - Livraison Mars 2026
Dans un cadre paisible, accessible et à proximité de toutes commodités, découvrez ce magnifique appartement neuf situé au sein d'une résidence haut de gamme dont la livraison est prévue pour mars 2026. Pensée pour conjuguer confort, performance énergétique et qualité architecturale, la résidence offre à ses futurs occupants un cadre de vie harmonieux et durable.
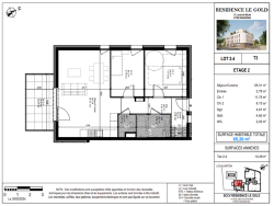
Description du logement :
L'appartement de 3 pièces et d'une superficie 65,26m2, se distingue par une distribution fonctionnelle et lumineuse :
-Entrée avec espace de rangement et accès direct aux pièces de vie -Salon / séjour d'environ 30 m2, ouvert sur l'espace cuisine et largement vitré pour une luminosité optimale -Accès à une terrasse de 10 m2, orientée sud-ouest, idéale pour profiter du soleil et d'une vue dégagée sur les champs -Deux chambres aux volumes équilibrés -Salle de bains moderne et parfaitement équipée -WC indépendants
Chaque détail a été pensé pour offrir un confort de vie durable et des finitions de qualité.
Confort & prestations techniques :
-Chauffage individuel au gaz à condensation avec production d'eau chaude sanitaire intégrée -Plancher chauffant à basse température, diffusant une chaleur douce et homogène -Distribution par réseaux hydrocâblés et conduits calorifugés, assurant performance et fiabilité -VMC hygroréglable B à débit variable, adaptée aux besoins réels de ventilation et aux normes en vigueur -Ascenseur hydraulique / électrique assurant l'accessibilité à tous les niveaux -Combiné interphone avec ouverture à distance de la porte d'entrée de l'immeuble
La résidence :
Cette copropriété de standing allie architecture contemporaine et qualité de construction.Les matériaux choisis, les finitions soignées et les prestations énergétiques répondent aux exigences actuelles de confort et d'efficacité thermique (réglementation RE 2020). Implantée à l'arrière du bâtiment, la majorité des appartements bénéficient d'une vue dégagée sur les espaces verts et les champs environnants, sans vis-à-vis, offrant ainsi un environnement paisible et agréable à vivre. Les espaces communs sont pensés pour la convivialité et la sérénité : accès sécurisé, ascenseur, stationnements privatifs, locaux vélos, etc.
Un investissement durable :
Cet appartement conviendra aussi bien à :
-un couple actif recherchant le confort d'un bien neuf aux dernières normes, -une famille souhaitant s'installer durablement dans un environnement serein, -ou un investisseur privilégiant la sécurité du neuf et la valorisation à long terme.
Livraison prévue : mars 2026 Vue champs - Terrasse sud-ouest - Copropriété haut de gamme - Chauffage individuel gaz à condensation
65.26 m²
4 042 €
29 m²
3
2
1
1
2 sur 3
2026
Sud
Ouest
Oui
Oui
1
Oui (9 lots)
Contact M. JUNG
Contacter gratuitement à l'aide du formulaire ci-dessous.