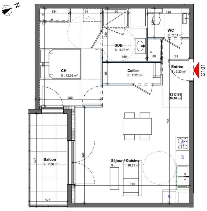
Appartement 3 pièces situé au 2ème étage d'une résidence sécurisée sans ascenseur et fermée de 21 lots.
Cet appartement offre un séjour et une cuisine séparée avec la possibilité d'ouvrir la cloison entre les deux pièces, deux chambres, un placard dans l'entrée, une salle de bain et WC séparé.
Une cave complète ce bien.
Chauffage individuel au gaz.
Taxe foncière 2024 : 747 €
Provision charges de copropriété : 266.47 €/trimestre (entretien des parties communes, assurance immeuble, rémunération syndic, maintenance VMC...).
Frais de notaire réduit : 3 450 €
Cette vente répond aux articles L443-7 et L443-11 du Code de la Construction et de l'Habitation.
Priorité pour les locataires du parc social et les gardiens d'immeubles jusqu'au 13 janvier.
Les informations sur les risques auxquels ce bien est exposé sont disponibles sur le site Géorisques : www. georisques. gouv. fr
72 m²
1 818 €
3
2
1
1
2 sur 3
Séparée
Consommations énergétiques
Logement économe
109
Logement énergivore (kWhEP/m2/an)
Émissions de gaz à effet de serre
Faible émission de GES
20
Forte émission de GES(kgeqCO2/m2/an)
Contact Synergie Habitat
Contacter gratuitement à l'aide du formulaire ci-dessous.