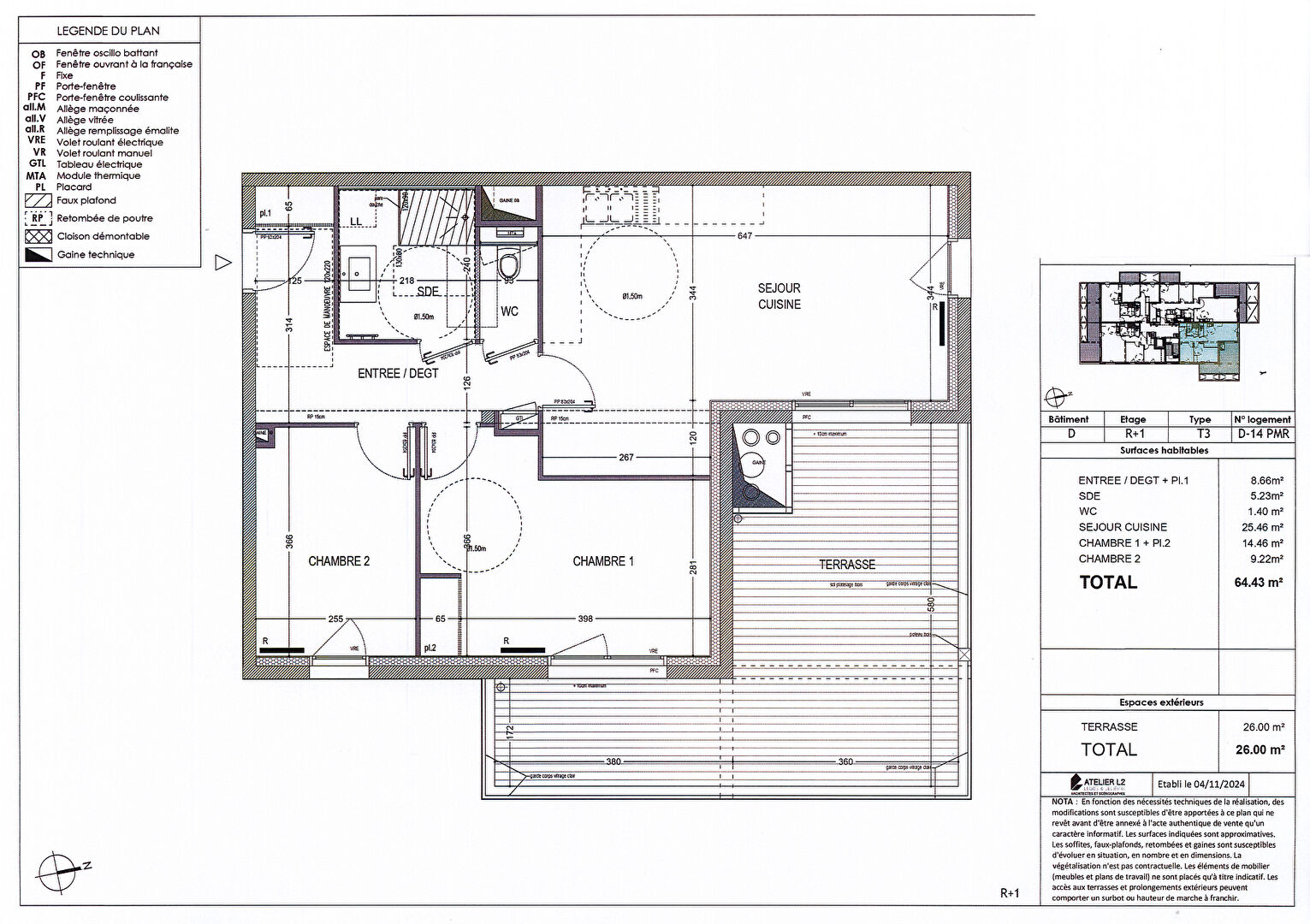
À proximité immédiate du centre-ville de Rennes ce 3 pièces de 61 m² offre un cadre de vie moderne et fonctionnel, avec un accès direct aux commerces et aux transports.
Conçu dans le respect de la norme RE 2020 et réalisé avec des matériaux de qualité, il propose un séjour optimisé, une cuisine pratique et une salle d'eau contemporaine. L'agencement a été pensé pour permettre un aménagement sur mesure, alliant confort et efficacité au quotidien.
La résidence bénéficie d'un emplacement privilégié dans un quartier recherché, calme et arboré. Les volumes sont intelligemment répartis, les finitions soignées, et la majorité des logements dispose d'un extérieur privatif : jardin, loggia, balcon ou terrasse.
Entièrement close et sécurisée, elle répond aux dernières exigences en matière de construction, avec une isolation thermique renforcée et une conception tournée vers les économies d'énergie.
Cette opportunité constitue un choix idéal, que ce soit pour un premier achat ou un investissement locatif durable dans un cadre de qualité.
Visuels, prix, stocks et informations donnés à titre indicatif et susceptibles d'être modifiés à tout moment.
Contactez-nous dès maintenant pour plus d'informations.