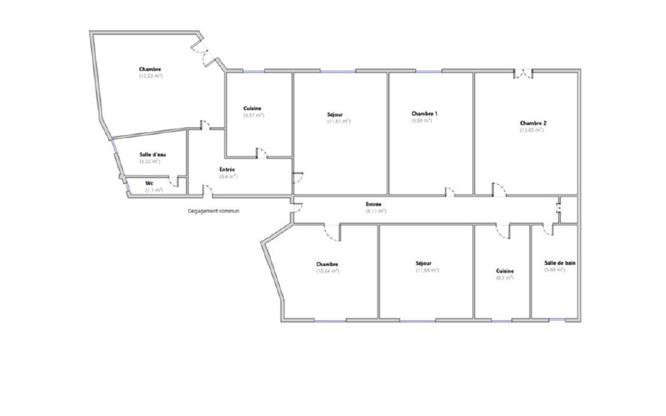
Co-exclusivité AB IMMOBILIER - Opportunité unique à découvrir ! Menton, à 5mn de l'accès autoroute, dans un environnement calme où règne nature et sérénité, vaste appartement totalisant 163m2 habitables (93m2 LC, une partie est en duplex) et formant l'entier dernier étage d'une villa bâtie sur plus de 1800m2 de terrain et divisée en 3 logements. Accès de plain pied avec ses deux parkings privatifs, belle terrasse attenante à l'appartement avec vue dégagée, jardin privé et terrasse de plus de 100m2, tous les avantages d'une maison au prix d'un appartement avec des charges très faibles !!! L'appartement est habitable mais une rénovation et un réaménagement seront à prévoir selon les envies et les besoins, ici tout est permis ! Bien soumis au statut de la copropriété - charges annuelles estimées à moins de 500EUR - honoraires charge vendeur Renseignements et visites : 0789244232 Julie THIBAULT
163 m²
2 393 €
20 m²
18 m²
1846 m²
5
3
1
1
2
Sud
Est
1 (20 m²)
2
Oui (3 lots)
Consommations énergétiques
Logement économe
317
Logement énergivore (kWhEP/m2/an)
Émissions de gaz à effet de serre
Faible émission de GES
10
Forte émission de GES(kgeqCO2/m2/an)
Contact THIBAULT Julie
Contacter gratuitement à l'aide du formulaire ci-dessous.