APPARTEMENT 3 PIÈCES AVEC TERRASSE & JARDIN PRIVATIF DE 174m
Maisons-Alfort 94700
0
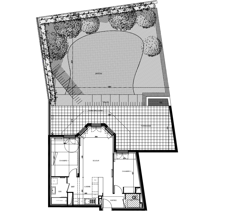
EMPLACEMENT RECHERCHÉ ÉCOLE VÉTÉRINAIRE EXTÉRIEUR EXCEPTIONNEL Idéalement situé à Maisons-Alfort, dans le secteur prisé École Vétérinaire, à proximité immédiate des commerces, transports et aux portes de Paris. Le CABINET BR-IMMOBILIER vous propose ce superbe 3 pièces de 63 m2 en rez-de-jardin, au sein d'une petite copropriété récente et agréable. Ce bien rare bénéficie d'un extérieur exceptionnel de 174 m2, comprenant une terrasse de 47 m2 ainsi qu'un jardin privatif de 127 m2 avec serre et potager, exposé plein Sud, qui offre une surface pondérée totale de 115m2. Pensé pour préserver l'intimité, le jardin est sans aucun vis-à-vis, dans un environnement particulièrement calme et verdoyant. L'appartement se compose d'une belle entrée, de deux chambres, d'un spacieux séjour baigné de lumière grâce à trois grandes portes-fenêtres, ainsi que d'une cuisine ouverte entièrement équipée avec électroménager haut de gamme. Une salle de bains entièrement rénovée, un WC spacieux, ainsi qu'un mini cellier complètent ce bien. Toutes les pièces ouvrent directement sur le jardin, offrant une sensation de maison et une qualité de vie rare sur le secteur. Prestations de qualité : parquet en chêne massif, porte blindée, double vitrage, fibre optique, visiophone, interphone, système d'alarme vidéo, isolation performante. Place de parking en sous-sol inclus. Charges annuelles: 2400 EUR Taxe Fonciere: exonération pendant 2 ans
115 m²
5 304 €
27 m²
3
2
1
1
200 € / mois
2025
Sud
Oui
1
Oui
1
Oui (89 lots)
Consommations énergétiques
Logement économe
58
Logement énergivore (kWhEP/m2/an)
Émissions de gaz à effet de serre
Faible émission de GES
1
Forte émission de GES(kgeqCO2/m2/an)
Contact MGAIETH Yoann
Contacter gratuitement à l'aide du formulaire ci-dessous.